Fris, licht en modern appartement met balkon en loggia.
Op zoek naar comfortabel wonen op een fijne, groene locatie? Dit goed onderhouden appartement op de tweede verdieping biedt precies dat. Gelegen in een rustig deel van Bussum, geniet je hier van zowel privacy als uitstekende verbindingen richting Amsterdam, Utrecht en Hilversum.
Het appartement maakt deel uit van het kleinschalige en verzorgde complex Randwijck I en II, aan de zuidrand van Bussum. Binnen enkele minuten sta je op de Bussumerheide voor een heerlijke wandeling, terwijl winkels, openbaar vervoer en uitvalswegen zich allemaal op korte afstand bevinden.
Indeling
Via het verzorgde, gezamenlijke trappenhuis bereik je het appartement op de tweede verdieping. Vanuit de hal zijn alle ruimtes toegankelijk.
De woonkamer met eetgedeelte is heerlijk licht en voelt ruim aan. Vanuit hier stap je zo de loggia op, een fijne, beschutte plek om het hele jaar door buiten te zitten. De slaapkamer ligt rustig en heeft een prettig formaat.
Aan de voorzijde bevindt zich de nette, afgesloten keuken, compleet met inbouwapparatuur en met toegang tot het balkon. De badkamer is modern uitgevoerd en voorzien van een douche en wastafelmeubel. Daarnaast…
Fris, licht en modern appartement met balkon en loggia.
Op zoek naar comfortabel wonen op een fijne, groene locatie? Dit goed onderhouden appartement op de tweede verdieping biedt precies dat. Gelegen in een rustig deel van Bussum, geniet je hier van zowel privacy als uitstekende verbindingen richting Amsterdam, Utrecht en Hilversum.
Het appartement maakt deel uit van het kleinschalige en verzorgde complex Randwijck I en II, aan de zuidrand van Bussum. Binnen enkele minuten sta je op de Bussumerheide voor een heerlijke wandeling, terwijl winkels, openbaar vervoer en uitvalswegen zich allemaal op korte afstand bevinden.
Indeling
Via het verzorgde, gezamenlijke trappenhuis bereik je het appartement op de tweede verdieping. Vanuit de hal zijn alle ruimtes toegankelijk.
De woonkamer met eetgedeelte is heerlijk licht en voelt ruim aan. Vanuit hier stap je zo de loggia op, een fijne, beschutte plek om het hele jaar door buiten te zitten. De slaapkamer ligt rustig en heeft een prettig formaat.
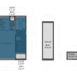
Aan de voorzijde bevindt zich de nette, afgesloten keuken, compleet met inbouwapparatuur en met toegang tot het balkon. De badkamer is modern uitgevoerd en voorzien van een douche en wastafelmeubel. Daarnaast beschikt de woning over een separaat toilet en een extra ruimte die momenteel als kastenkamer in gebruik is, maar eenvoudig kan worden omgevormd tot een tweede slaapkamer.
Buitenruimte
De woning beschikt over twee buitenruimtes: aan de voorzijde vind je het balkon, een heerlijke plek om ’s ochtends van de zon te genieten. Aan de achterzijde ligt de loggia: beschut gelegen en een mooi verlengstuk van de woonkamer.
Vereniging van Eigenaren (VvE)
De woning maakt deel uit van de actieve en goed georganiseerde VvE Randwijck I en II, professioneel beheerd door Nienaber VGM. Het complex wordt keurig onderhouden en beschikt over een meerjarenonderhoudsplan, zodat toekomstige onderhoudswerkzaamheden goed zijn geborgd.
Locatie en bereikbaarheid
Op loopafstand van de Bussumerheide en NS-station Bussum-Zuid. Daarnaast zijn de uitvalswegen richting de A1 binnen enkele autominuten bereikbaar en bevinden winkels, scholen, sportvoorzieningen en horeca zich in de directe omgeving.
Bijzonderheden
- Tweekamerappartement op de tweede verdieping
- Woonoppervlakte ca. 47,8 m² (GO wonen)
- Balkon én loggia
- Externe berging van ca. 4,5 m²
- Bouwjaar 1955
- Energielabel E
- Actieve en gezonde VvE
- Servicekosten thans ca. € 180,- per maand
- Gelegen in een rustige, groene en geliefde woonomgeving
U bent van harte welkom voor een uitgebreide rondleiding met een van onze makelaars.