Beschikbaar

Bodemanstraat 40

  • Hilversum
  • |
  • 104 m2
  • |
  • 117 m2

€625.000 k.k.

Volledig gerenoveerde jaren ’30 woning met tuin op het zuidwesten

In 2025 is deze charmante middenwoning in het geliefde Rode Dorp (Hilversum-Zuid) volledig gerenoveerd én voorzien van een aangelegde voor- en achtertuin. Het resultaat: een…

"Geluk zit 'm in vele dingen en prettig wonen hoort daar zeker bij"

Voorma en Walch Makelaars in het GooiHet team

Kenmerken

    Overdracht

  • Aanvaarding In overleg
  • Bouw

  • Soort woning Eengezinswoning
  • Type woning Tussenwoning
  • Soort bouw Bestaande bouw
  • Bouwjaar 1935

    Details

  • Voorzieningen Mechanische ventilatie, natuurlijke ventilatie
  • Ligging In woonwijk
  • Oppervlakten en inhoud

  • Woonoppervlakte 104 m2
  • Perceel 117 m2
  • Inhoud 357 m3
  • Indeling

  • kamers 4
  • slaapkamers 3
  • badkamer 1
  • Badkamervoorzieningen Toilet, dubbele wastafel, wastafelmeubel, inloopdouche
  • Isolatie en verwarming

  • Isolatie Dakisolatie, muurisolatie, vloerisolatie, dubbel glas
  • Soort Verwarming Cv ketel
  • Ketel bouwjaar 2025
  • Ketel gas/olie Elektrisch
  • Ketel eigendom Eigendom
  • Energielabel

  • Energielabel B
  • Buitenruimte

  • Tuin type(n) Achtertuin
  • Hoofdtuin oppervlakte 45 m2
  • Ligging hoofdtuin Noordwest
  • Garage

  • Garagesoorten Geen garage
  • Parkeergelegenheid

  • Faciliteit Openbaar parkeren, parkeervergunningen
Meer kenmerken

Omschrijving

Volledig gerenoveerde jaren ’30 woning met tuin op het zuidwesten

In 2025 is deze charmante middenwoning in het geliefde Rode Dorp (Hilversum-Zuid) volledig gerenoveerd én voorzien van een aangelegde voor- en achtertuin. Het resultaat: een karaktervolle jaren '30 woning die volledig voldoet aan de woonwensen van nu.

De woning ligt in een rustige, kindvriendelijke straat, op loopafstand van Stadspark De Oude Haven, natuurgebied Corversbos, een speeltuin en diverse sportvelden. Voor de dagelijkse boodschappen wandel je zo naar de Albert Heijn of naar winkelgebied De Gijsbrecht met gezellige boetieks en horeca. Ook scholen, openbaar vervoer en de uitvalswegen richting Amsterdam en Utrecht zijn snel en eenvoudig bereikbaar.

Indeling:

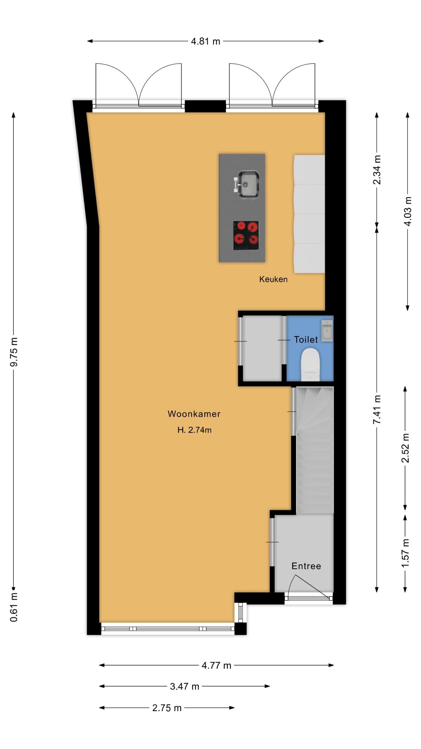
Begane grond: entree, lichte woon-/eetkamer met openslaande deuren over de volle breedte naar de achtertuin, open keuken met kookeiland en hoogwaardige inbouwapparatuur (inductiekookplaat, afwasmachine, koel-vriescombinatie en combi-oven), tussenhal met garderobe en modern toilet met fontein.

1e verdieping:
Centrale overloop, 2 ruime slaapkamers en een moderne badkamer met inloopdouche, wastafelmeubel, tweede toilet en designradiator.

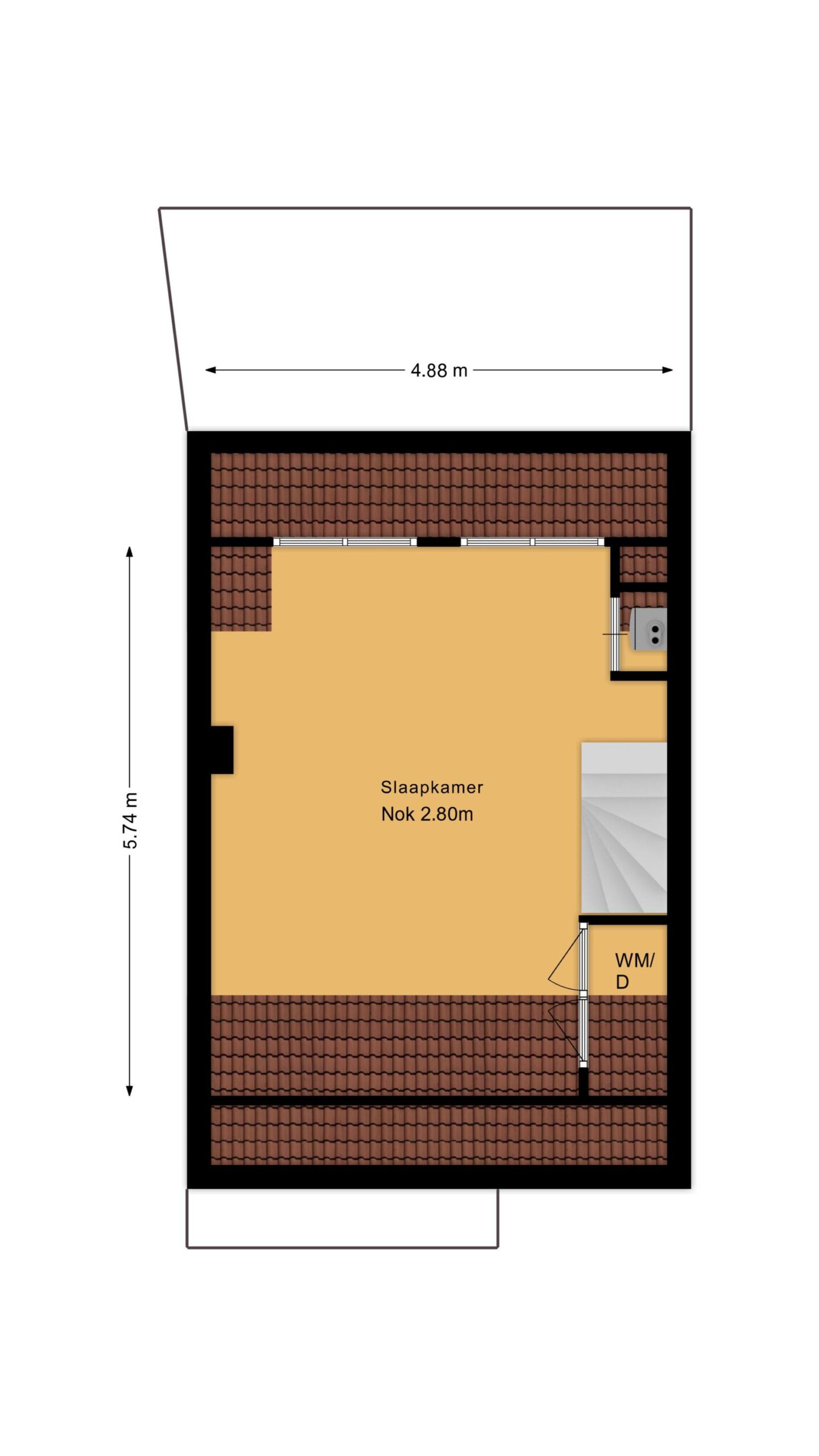
Zolder:
Via vaste trap bereikbaar: een royale open ruimte met dakkapel over de volle breedte aan de achterzijde, in gebruik als slaapkamer (mogelijkheid tot indeling in meerdere kamers…

Volledig gerenoveerde jaren ’30 woning met tuin op het zuidwesten

In 2025 is deze charmante middenwoning in het geliefde Rode Dorp (Hilversum-Zuid) volledig gerenoveerd én voorzien van een aangelegde voor- en achtertuin. Het resultaat: een karaktervolle jaren '30 woning die volledig voldoet aan de woonwensen van nu.

De woning ligt in een rustige, kindvriendelijke straat, op loopafstand van Stadspark De Oude Haven, natuurgebied Corversbos, een speeltuin en diverse sportvelden. Voor de dagelijkse boodschappen wandel je zo naar de Albert Heijn of naar winkelgebied De Gijsbrecht met gezellige boetieks en horeca. Ook scholen, openbaar vervoer en de uitvalswegen richting Amsterdam en Utrecht zijn snel en eenvoudig bereikbaar.

Indeling:

Begane grond: entree, lichte woon-/eetkamer met openslaande deuren over de volle breedte naar de achtertuin, open keuken met kookeiland en hoogwaardige inbouwapparatuur (inductiekookplaat, afwasmachine, koel-vriescombinatie en combi-oven), tussenhal met garderobe en modern toilet met fontein.

1e verdieping:
Centrale overloop, 2 ruime slaapkamers en een moderne badkamer met inloopdouche, wastafelmeubel, tweede toilet en designradiator.

Zolder:
Via vaste trap bereikbaar: een royale open ruimte met dakkapel over de volle breedte aan de achterzijde, in gebruik als slaapkamer (mogelijkheid tot indeling in meerdere kamers en/of tweede badkamer). Tevens de wasmachine-/drogeropstelling en de cv-installatie (2025).

Bijzonderheden:

- Met zorg en smaak gerenoveerd in 2025;
- Gelegen in gezellige, kindervriendelijke buurt (Rode Dorp);
- Nieuw aangelegde voor- en achtertuin, achtertuin met terras op het zuidwesten;
- Energielabel B;
- Cv-ketel uit 2025;
- Begane grond voorzien van visgraatvloer;
- Verdiepingen voorzien van laminaatvloeren;
- Volledige woning met vloerverwarming, per ruimte regelbaar;
- Parkeren middels vergunning (mogelijkheid tot 2 vergunningen);
- Instapklaar: verhuizen en direct wonen!

Toon meer

Foto's

Plattegronden

De buurt

Wij vertellen je graag wat over de omgeving.

Leeftijd in gemeente
0 - 15 jaar
15 - 25 jaar
25-45 jaar
45 - 65 jaar
65+ jaar
  • 0 - 15 jaar
  • 15 - 25 jaar
  • 25 - 45 jaar
  • 45 - 65 jaar
  • 65+ jaar
Gezinnen met kinderen
Met kinderen
Zonder kinderen
Alleenstaand
  • Met kinderen
  • Zonder kinderen
  • Alleenstaand
Leeftijd buurtbewoners
0 - 15 jaar
15 - 25 jaar
25-45 jaar
45 - 65 jaar
65+ jaar
  • 0 - 15 jaar
  • 15 - 25 jaar
  • 25 - 45 jaar
  • 45 - 65 jaar
  • 65+ jaar

Downloads

NVM Makelaar

Stijn Lommers

Direct contact Direct contact
Voorma en Walch Makelaars in het Gooi

Contact opnemen

Voel je vrij en
neem contact op.

Wil je mooi en groen wonen in het Gooi? Of zoek je een lokale makelaar met wie je rustig jouw woonsituatie kunt bespreken? Wij nodigen je graag uit voor een cappuccino op één van onze kantoren!

Contact
';