Beschikbaar

Boomberglaan 20

  • Hilversum
  • |
  • 261 m2
  • |
  • 562 m2

€1.595.000 k.k.

Klassieke vrijstaande villa met authentieke stijlkenmerken in het Noordwestelijk Villagebied

Aan de statige Boomberglaan in het geliefde Noordwestelijk Villagebied van Hilversum ligt deze royale vrijstaande karakteristieke villa. De straat…

"Geluk zit 'm in vele dingen en prettig wonen hoort daar zeker bij"

Voorma en Walch Makelaars in het GooiHet team

Kenmerken

    Overdracht

  • Aanvaarding In overleg
  • Bouw

  • Soort woning Villa
  • Type woning Vrijstaande woning
  • Soort bouw Bestaande bouw
  • Bouwjaar 1910

    Details

  • Voorzieningen Tv kabel, rookkanaal, glasvezel kabel
  • Ligging Aan rustige weg, in woonwijk
  • Daktype Samengesteld dak
  • Oppervlakten en inhoud

  • Woonoppervlakte 261 m2
  • Oppervlakte overige functies 10 m2
  • Perceel 562 m2
  • Inhoud 1.093 m3
  • Indeling

  • kamers 8
  • slaapkamers 5
  • badkamers 2
  • Badkamervoorzieningen Zitbad, toilet, dubbele wastafel, douche
  • Isolatie en verwarming

  • Isolatie Muurisolatie, gedeeltelijk dubbel glas, voorzetramen
  • Soort Verwarming Cv ketel, vloerverwarming gedeeltelijk
  • Ketel bouwjaar 2012
  • Ketel gas/olie Gas
  • Ketel eigendom Eigendom
  • Energielabel

  • Energielabel D
  • Buitenruimte

  • Tuin type(n) Achtertuin
  • Hoofdtuin oppervlakte 144 m2
  • Ligging hoofdtuin Noordoost
  • Garage

  • Garagesoorten Vrijstaand steen
  • Parkeergelegenheid

  • Faciliteit Op eigen terrein
Meer kenmerken

Omschrijving

Klassieke vrijstaande villa met authentieke stijlkenmerken in het Noordwestelijk Villagebied

Aan de statige Boomberglaan in het geliefde Noordwestelijk Villagebied van Hilversum ligt deze royale vrijstaande karakteristieke villa. De straat kenmerkt zich door zijn lommerrijke karakter, ruime opzet en rust, terwijl het centrum van Hilversum, winkels, scholen en het NS-station op loopafstand bereikbaar zijn. Een ideale locatie voor wie de combinatie van rust, ruimte en bereikbaarheid zoekt.

Deze woning, gebouwd rond 1910, ademt een rijke historie en heeft veel van haar oorspronkelijke karakter behouden. Authentieke details zoals glas-in-loodramen, paneeldeuren, een fraaie granitovloer en hoge plafonds zijn op diverse plekken aanwezig. De klassieke kenmerken geven de woning karakter, terwijl de indeling praktisch en ruim is.
Met een woonoppervlakte van ca. 261 m², verdeeld over meerdere woonlagen, en een perceel van 562 m², biedt deze villa volop mogelijkheden. Het is een ideale woning voor een groot gezin, werken aan huis of gewoon genieten van royale leefruimtes en een groene, besloten tuin.

INDELING
Begane grond:
Entree, vestibule en ruime hal. Vanuit de hal zijn de verschillende vertrekken bereikbaar. Aan de voorzijde bevindt zich een werkkamer, perfect als kantoor of studeerkamer. De…

Klassieke vrijstaande villa met authentieke stijlkenmerken in het Noordwestelijk Villagebied

Aan de statige Boomberglaan in het geliefde Noordwestelijk Villagebied van Hilversum ligt deze royale vrijstaande karakteristieke villa. De straat kenmerkt zich door zijn lommerrijke karakter, ruime opzet en rust, terwijl het centrum van Hilversum, winkels, scholen en het NS-station op loopafstand bereikbaar zijn. Een ideale locatie voor wie de combinatie van rust, ruimte en bereikbaarheid zoekt.

Deze woning, gebouwd rond 1910, ademt een rijke historie en heeft veel van haar oorspronkelijke karakter behouden. Authentieke details zoals glas-in-loodramen, paneeldeuren, een fraaie granitovloer en hoge plafonds zijn op diverse plekken aanwezig. De klassieke kenmerken geven de woning karakter, terwijl de indeling praktisch en ruim is.
Met een woonoppervlakte van ca. 261 m², verdeeld over meerdere woonlagen, en een perceel van 562 m², biedt deze villa volop mogelijkheden. Het is een ideale woning voor een groot gezin, werken aan huis of gewoon genieten van royale leefruimtes en een groene, besloten tuin.

INDELING
Begane grond:
Entree, vestibule en ruime hal. Vanuit de hal zijn de verschillende vertrekken bereikbaar. Aan de voorzijde bevindt zich een werkkamer, perfect als kantoor of studeerkamer. De woonkamer staat in verbinding met een lichte serre. Aan de achterzijde bevindt zich een achterkamer met open haard, met zicht op en toegang tot de tuin.
De keuken grenst aan de bijkeuken en heeft toegang tot de provisiekelder. Tevens is er op de begane grond een doucheruimte aanwezig.

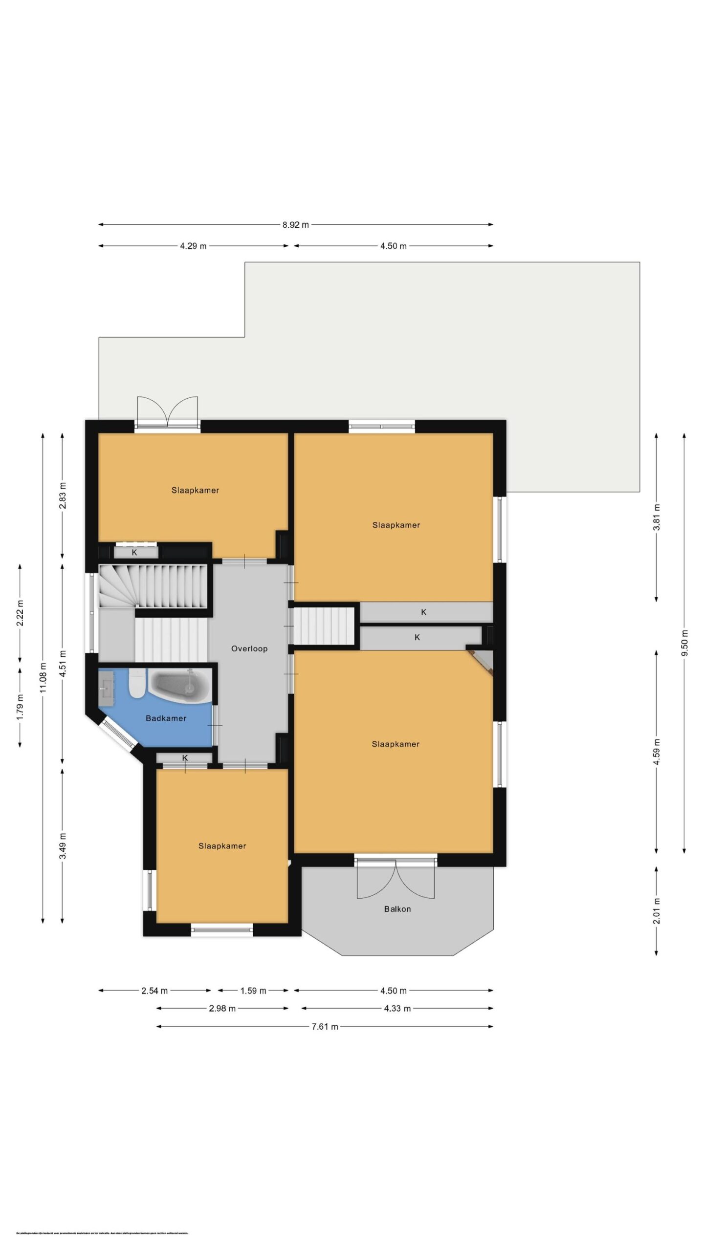
Eerste verdieping:
Overloop met toegang tot vier slaapkamers in verschillende formaten. Twee slaapkamers hebben toegang tot een balkon, aan zowel de voor- als achterzijde van de woning. De badkamer is voorzien van een zitbad, toilet en wastafel.

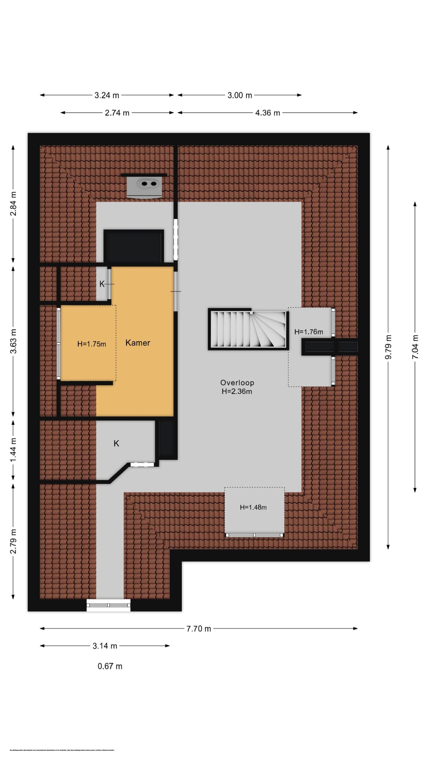
Tweede verdieping:
Via een vaste trap bereikbare zolderverdieping met goede stahoogte, die mogelijkheden biedt voor het realiseren van meerdere slaapkamers en/of een extra badkamer.

Extra ruimtes:
Kelder, diverse bergruimten en een royale vrijstaande stenen garage. Daarnaast zijn er twee opritten voor meerdere auto’s op eigen terrein, wat parkeren zeer comfortabel maakt.

Buitenruimte:
De woning is omgeven door een tuin rondom. De achtertuin is gelegen op het noordoosten, waardoor er gedurende de dag zowel zon- als schaduwplekken aanwezig zijn.

Bijzonderheden
• Gelegen in beschermd stads- en dorpsgezicht Noordwestelijk Villagegebied
• Bouwjaar circa 1910, uitbouw achterzijde circa 1978
• Woonoppervlakte ca. 261 m², perceel 562 m²
• Vrijstaande garage en parkeermogelijkheden op eigen terrein
• Ouderdomsclausule en niet-zelfbewoondclausule van toepassing
• Bouwkundige keuring beschikbaar
• Energielabel D

Toon meer

Foto's

Plattegronden

De buurt

Wij vertellen je graag wat over de omgeving.

Leeftijd in gemeente
0 - 15 jaar
15 - 25 jaar
25-45 jaar
45 - 65 jaar
65+ jaar
  • 0 - 15 jaar
  • 15 - 25 jaar
  • 25 - 45 jaar
  • 45 - 65 jaar
  • 65+ jaar
Gezinnen met kinderen
Met kinderen
Zonder kinderen
Alleenstaand
  • Met kinderen
  • Zonder kinderen
  • Alleenstaand
Leeftijd buurtbewoners
0 - 15 jaar
15 - 25 jaar
25-45 jaar
45 - 65 jaar
65+ jaar
  • 0 - 15 jaar
  • 15 - 25 jaar
  • 25 - 45 jaar
  • 45 - 65 jaar
  • 65+ jaar

NVM Register Makelaar - Register Taxateur

Tiffany de Beer

Direct contact Direct contact
Voorma en Walch Makelaars in het Gooi

Contact opnemen

Voel je vrij en
neem contact op.

Wil je mooi en groen wonen in het Gooi? Of zoek je een lokale makelaar met wie je rustig jouw woonsituatie kunt bespreken? Wij nodigen je graag uit voor een cappuccino op één van onze kantoren!

Contact
';