NVM OPEN HUIZEN DAG ZATERDAG 28 MAART 2026 VAN 11:00-15:00 UUR

Beschikbaar

Burgemeester Fonteinlaan 5

  • Huizen
  • |
  • 161 m2
  • |

€825.000 k.k.

Op een groene locatie, op steenworp afstand van de dorpsvoorzieningen van Huizen, bevindt zich dit royale begane grond appartement van maar liefst 161 m². Het appartement is onderdeel van het goed onderhouden en statige complex Fonteinpark en…

"Geluk zit 'm in vele dingen en prettig wonen hoort daar zeker bij"

Voorma en Walch Makelaars in het GooiHet team

Kenmerken

    Overdracht

  • Aanvaarding In overleg
  • Bouw

  • Soort bouw Bestaande bouw
  • Bouwjaar 2000

    Details

  • Voorzieningen Mechanische ventilatie, alarminstallatie, buitenzonwering, lift
  • Ligging In woonwijk
  • Oppervlakten en inhoud

  • Woonoppervlakte 161 m2
  • Inhoud 589 m3
  • Indeling

  • kamers 3
  • slaapkamers 2
  • badkamer 1
  • Badkamervoorzieningen Ligbad, toilet, douche, dubbele wastafel, wastafelmeubel
  • Isolatie en verwarming

  • Isolatie Dakisolatie, muurisolatie, vloerisolatie, dubbel glas
  • Soort Verwarming Cv ketel
  • Ketel gas/olie Gas
  • Ketel eigendom Eigendom
  • Energielabel

  • Energielabel A
  • Buitenruimte

  • Tuin type(n) Achtertuin
  • Hoofdtuin oppervlakte 48 m2
  • Ligging hoofdtuin Zuid
  • Garage

  • Garagesoorten Inpandig
  • Parkeergelegenheid

Meer kenmerken

Omschrijving

Op een groene locatie, op steenworp afstand van de dorpsvoorzieningen van Huizen, bevindt zich dit royale begane grond appartement van maar liefst 161 m².

Het appartement is onderdeel van het goed onderhouden en statige complex Fonteinpark en biedt naast twee ruime slaapkamers - waaronder de masterbedroom met badkamer en-suite en een aparte inloopkast - ook een heerlijk lichte woonkamer, een zonnige tuin én het gemak van een lift in het gebouw. Een ideale combinatie van comfort, ruimte en bereikbaarheid – perfect voor wie gelijkvloers wil wonen zonder in te leveren op woonkwaliteit!

Het gehele complex is gebouwd en afgewerkt met hoogwaardige en luxe materialen, is volledig beveiligd en voorzien van video-installatie. Met de elektrische deuropener gaat de buitendeur automatisch voor u open.

De entree ligt aan de groene gemeenschappelijke binnentuin met terras en parkeerplaatsen voor bezoekers. De locatie aan de Burgemeester Fonteinlaan combineert stijlvol wonen met het gemak van uitstekende voorzieningen. Op korte afstand vindt u onder andere een jeu de boules baan, het gezellige oude dorp met diverse supermarkten, speciaalzaken, horecagelegenheden en op zaterdag de weekmarkt.

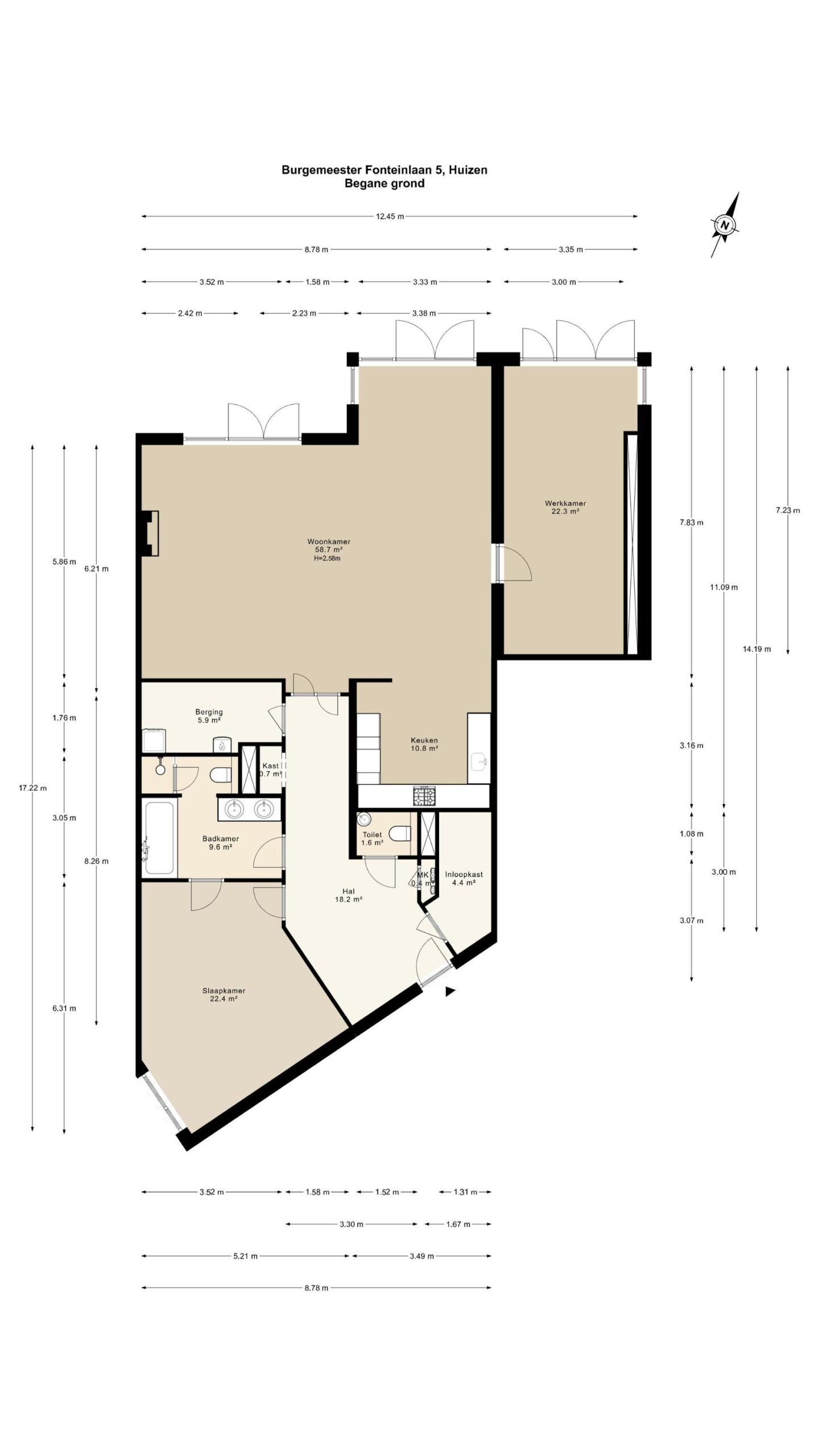
INDELING
Begane grond: Entree in de centrale hal, toegangsdeur die via de…

Op een groene locatie, op steenworp afstand van de dorpsvoorzieningen van Huizen, bevindt zich dit royale begane grond appartement van maar liefst 161 m².

Het appartement is onderdeel van het goed onderhouden en statige complex Fonteinpark en biedt naast twee ruime slaapkamers - waaronder de masterbedroom met badkamer en-suite en een aparte inloopkast - ook een heerlijk lichte woonkamer, een zonnige tuin én het gemak van een lift in het gebouw. Een ideale combinatie van comfort, ruimte en bereikbaarheid – perfect voor wie gelijkvloers wil wonen zonder in te leveren op woonkwaliteit!

Het gehele complex is gebouwd en afgewerkt met hoogwaardige en luxe materialen, is volledig beveiligd en voorzien van video-installatie. Met de elektrische deuropener gaat de buitendeur automatisch voor u open.

De entree ligt aan de groene gemeenschappelijke binnentuin met terras en parkeerplaatsen voor bezoekers. De locatie aan de Burgemeester Fonteinlaan combineert stijlvol wonen met het gemak van uitstekende voorzieningen. Op korte afstand vindt u onder andere een jeu de boules baan, het gezellige oude dorp met diverse supermarkten, speciaalzaken, horecagelegenheden en op zaterdag de weekmarkt.

INDELING
Begane grond: Entree in de centrale hal, toegangsdeur die via de intercom of met sleutel is te openen. Voordeur bevindt zich op de begane grond aan de linkerzijde. Entree in de royale hal met de meterkast, aparte wc, inloopkast en toegang naar de hoofdslaapkamer, badkamer, berging en woonkamer. De hoofdslaapkamer heeft eveneens toegang tot de badkamer die is voorzien van prachtig wit marmer en beschikt over een wc, inloopdouche, dubbele wastafel en ligbad. De berging heeft aansluitingen voor de wasmachine, droger, mechanische ventilatie en dient tevens als CV ruimte. Bij binnenkomst in de ruime woonkamer (bijna 60 m²) valt direct de lichtinval op dankzij de grote ramen op de zuid kant. Vanuit de woonkamer toegang naar de zonnige groene tuin. Het terras hoort bij het appartementsrecht en het algemene deel van de VvE is in bruikleen. Keuken met diverse inbouwapparatuur waaronder een elektrische kookplaat, afwasmachine, ijskast, vriezer en oven. De tweede slaapkamer, thans in gebruik als werkkamer, is gelegen aan de achterzijde en bereikbaar via de woonkamer.

Onderin het gebouw bevindt zich de externe berging (ca. 10 m²) en een eigen parkeerplaats.

Het gehele complex is gebouwd en afgewerkt met hoogwaardige en luxe materialen, is volledig beveiligd en voorzien van video-installatie. Aan de voorzijde ligt een groene gemeenschappelijke binnentuin met parkeerplaatsen voor bezoekers.

LOCATIE & BEREIKBAARHEID
Het appartement is gelegen in het kleinschalige en geliefde complex Fonteinpark, aan de lommerrijke Burgemeester Fonteinlaan in Huizen. Deze locatie combineert rust en groen met het gemak van uitstekende voorzieningen op korte afstand. Op loopafstand vindt u onder andere het gezellige oude dorp, diverse supermarkten, speciaalzaken en horecagelegenheden.

Ook qua bereikbaarheid zit u hier uitstekend: de uitvalswegen naar de A1 en A27 zijn binnen enkele minuten te bereiken, waardoor steden als Amsterdam, Utrecht en Amersfoort snel toegankelijk zijn. Daarnaast is er een goede aansluiting op het openbaar vervoer met bushaltes in de directe omgeving. Of u nu met de auto reist of liever met het OV – deze locatie biedt u alle comfort van een centrale ligging in het Gooi, met de rust van een groene woonomgeving.

KENMERKEN
- Royaal appartement gelegen op de begane grond
- Gebruiksoppervlakte wonen ca. 161 m² (NEN2580 meetrapport aanwezig)
- Ruime en groene tuin ca. 48 m², gunstig gelegen op het zuiden (het terras is eigendom en een deel van de tuin in bruikleen van de VvE)
- Ideale ligging ten opzichte van het centrum van Huizen, voorzieningen zijn op loopafstand
- Masterbedroom met badkamer en-suite en tweede royale slaapkamer
- Aparte inloopkast
- Lift
- Bouwjaar 2000
- Energielabel A
- VvE servicekosten bedragen ca. € 533,84 per maand
- Actieve en professioneel beheerde VvE bestaande uit 16 leden
- Meer jaren onderhoudsplan aanwezig
- Inpandige parkeerplaats en berging onderin het gebouw

Voor een rondleiding door dit royale begane grond appartement kunt u contact opnemen met Aldert J. Froma, NVM Makelaar en/of Jacques E. Walch, NVM Register Makelaar van ons makelaarskantoor Laren. Nog beter is om uw eigen NVM aankoopmakelaar mee te nemen.

Deze informatie is door ons met de nodige zorgvuldigheid samengesteld. Onzerzijds wordt echter geen enkele aansprakelijkheid aanvaard voor enige onvolledigheid, onjuistheid of anderszins, dan wel de gevolgen daarvan. Alle opgegeven maten en oppervlakten zijn indicatief. Koper heeft zijn eigen onderzoek plicht naar alle zaken die voor hem of haar van belang zijn. Met betrekking tot deze woning is de makelaar adviseur van verkoper. Wij adviseren u een deskundige (NVM-)makelaar in te schakelen die u begeleidt bij het aankoopproces. Indien u specifieke wensen heeft omtrent de woning, adviseren wij u deze tijdig kenbaar te maken aan uw aankopend makelaar en hiernaar zelfstandig onderzoek te (laten) doen. Indien u geen deskundige vertegenwoordiger inschakelt, acht u zich volgens de wet deskundige genoeg om alle zaken die van belang zijn te kunnen overzien. Van toepassing zijn de NVM voorwaarden.

Toon meer

Foto's

De buurt

Wij vertellen je graag wat over de omgeving.

Leeftijd in gemeente
0 - 15 jaar
15 - 25 jaar
25-45 jaar
45 - 65 jaar
65+ jaar
  • 0 - 15 jaar
  • 15 - 25 jaar
  • 25 - 45 jaar
  • 45 - 65 jaar
  • 65+ jaar
Gezinnen met kinderen
Met kinderen
Zonder kinderen
Alleenstaand
  • Met kinderen
  • Zonder kinderen
  • Alleenstaand
Leeftijd buurtbewoners
0 - 15 jaar
15 - 25 jaar
25-45 jaar
45 - 65 jaar
65+ jaar
  • 0 - 15 jaar
  • 15 - 25 jaar
  • 25 - 45 jaar
  • 45 - 65 jaar
  • 65+ jaar

Downloads

NVM Makelaar

Aldert Froma

Direct contact Direct contact
Voorma en Walch Makelaars in het Gooi

Contact opnemen

Voel je vrij en
neem contact op.

Wil je mooi en groen wonen in het Gooi? Of zoek je een lokale makelaar met wie je rustig jouw woonsituatie kunt bespreken? Wij nodigen je graag uit voor een cappuccino op één van onze kantoren!

Contact
';