Beschikbaar

Eemnesserweg 39

  • Laren
  • |
  • 164 m2
  • |
  • 501 m2

€1.195.000 k.k.

Wonen in stijl en comfort op een toplocatie in Laren – deze helft van een dubbele villa heeft het allemaal! Met een woonoppervlakte van circa 164 m², vier slaapkamers, Energielabel A en een zonnige voor- én achtertuin biedt deze woning een…

"Geluk zit 'm in vele dingen en prettig wonen hoort daar zeker bij"

Voorma en Walch Makelaars in het GooiHet team

Kenmerken

    Overdracht

  • Aanvaarding In overleg
  • Bouw

  • Soort woning Villa
  • Type woning Twee onder een kapwoning
  • Soort bouw Bestaande bouw
  • Bouwjaar 1955

    Details

  • Voorzieningen Alarminstallatie, schuifpui, dakraam, zonnepanelen
  • Ligging In woonwijk, beschutte ligging
  • Daktype Zadeldak
  • Oppervlakten en inhoud

  • Woonoppervlakte 164 m2
  • Perceel 501 m2
  • Inhoud 593 m3
  • Indeling

  • kamers 6
  • slaapkamers 4
  • badkamer 1
  • Badkamervoorzieningen Toilet, wastafel, wastafelmeubel, inloopdouche, vloerverwarming
  • Isolatie en verwarming

  • Isolatie Muurisolatie, vloerisolatie
  • Soort Verwarming Cv ketel, vloerverwarming gedeeltelijk, gashaard
  • Ketel bouwjaar 2019
  • Ketel gas/olie Gas
  • Ketel eigendom Eigendom
  • Energielabel

  • Energielabel A
  • Buitenruimte

  • Tuin type(n) Achtertuin
  • Hoofdtuin oppervlakte 150 m2
  • Garage

  • Garagesoorten Geen garage
  • Parkeergelegenheid

  • Faciliteit Op eigen terrein
Meer kenmerken

Omschrijving

Wonen in stijl en comfort op een toplocatie in Laren – deze helft van een dubbele villa heeft het allemaal! Met een woonoppervlakte van circa 164 m², vier slaapkamers, Energielabel A en een zonnige voor- én achtertuin biedt deze woning een perfecte balans tussen ruimte, comfort en sfeer.

De woning is recent met veel oog voor detail gerenoveerd en straalt een bijzonder warme en uitnodigende ambiance uit. Hoogwaardige materialen, een doordachte indeling en een eigentijdse afwerking zorgen voor een instapklare woning waar u zich direct thuis voelt.

INDELING
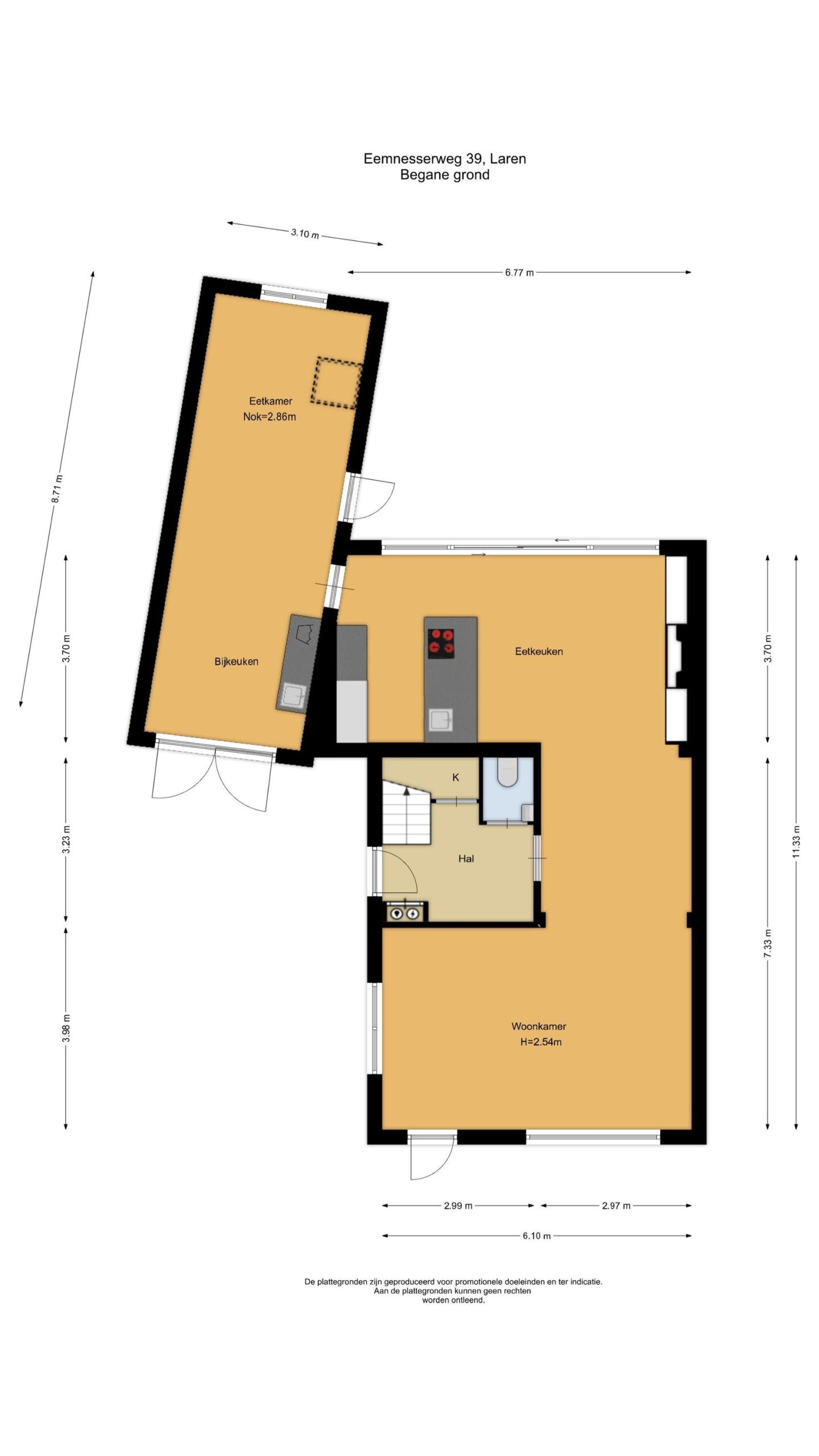
Begane grond: Entree, binnenkomst in de hal met garderobe. Trap naar eerste verdieping, toegang tot de geïsoleerde kelderkast, meterkast, aparte wc en deur naar de woonkamer. De ruime woonkamer is gelegen aan de voorzijde. Aan de achterzijde bevindt zich de eetkamer met, een gashaard, inbouwkast en de luxe vernieuwde open keuken welke is voorzien van een composiet werkblad en diverse inbouwapparatuur. De keuken is voorzien van vloerverwarming en geeft via de schuifpui toegang tot de achtertuin. Via de keuken toegang naar de compleet gerenoveerde garage die nu is voorzien van aansluitingen voor de wasmachine/ droger en een deur naar de achtertuin.

Wonen in stijl en comfort op een toplocatie in Laren – deze helft van een dubbele villa heeft het allemaal! Met een woonoppervlakte van circa 164 m², vier slaapkamers, Energielabel A en een zonnige voor- én achtertuin biedt deze woning een perfecte balans tussen ruimte, comfort en sfeer.

De woning is recent met veel oog voor detail gerenoveerd en straalt een bijzonder warme en uitnodigende ambiance uit. Hoogwaardige materialen, een doordachte indeling en een eigentijdse afwerking zorgen voor een instapklare woning waar u zich direct thuis voelt.

INDELING
Begane grond: Entree, binnenkomst in de hal met garderobe. Trap naar eerste verdieping, toegang tot de geïsoleerde kelderkast, meterkast, aparte wc en deur naar de woonkamer. De ruime woonkamer is gelegen aan de voorzijde. Aan de achterzijde bevindt zich de eetkamer met, een gashaard, inbouwkast en de luxe vernieuwde open keuken welke is voorzien van een composiet werkblad en diverse inbouwapparatuur. De keuken is voorzien van vloerverwarming en geeft via de schuifpui toegang tot de achtertuin. Via de keuken toegang naar de compleet gerenoveerde garage die nu is voorzien van aansluitingen voor de wasmachine/ droger en een deur naar de achtertuin.

Eerste verdieping: overloop met toegang naar de inloopkast, die ook als slaapkamer kan worden gebruikt. Gerenoveerde badkamer voorzien van vloerverwarming, wastafel met verwarmde spiegel, wc en inloopdouche. Twee slaapkamers waaronder een ruime master bedroom en slaapkamer voorzien van inbouwkast.

Tweede verdieping: via vaste trap naar de zolder verdieping. Hier bevinden zich eveneens aansluitingen voor wasmachine / droger, Cv ketel (Intergas compact HRE uit 2019) en toegang naar de vierde slaapkamer. De knieschotten bieden veel opbergruimte.

OMGEVING & BEREIKBAARHEID
Gelegen in het karakteristieke Laren bevindt deze woning zich in een populaire en groene woonomgeving. Laren staat bekend om zijn charmante dorpskern, met een gevarieerd aanbod aan winkels, speciaalzaken, goede restaurants en gezellige terrassen. Daarnaast biedt het oude Kunstenaars dorp een rijk cultureel leven met onder andere galerieën en het bekende Singer Laren. Op korte afstand liggen uitgestrekte heidevelden en bossen, ideaal voor wandel- en fietsliefhebbers. Tegelijkertijd zijn alle dagelijkse voorzieningen, zoals supermarkten, scholen en sportfaciliteiten, binnen handbereik. De bereikbaarheid is uitstekend te noemen. Via de nabijgelegen uitvalswegen, waaronder de A1 en A27, zijn steden als Amsterdam, Utrecht en Amersfoort snel en eenvoudig te bereiken. Ook het nabijgelegen Hilversum biedt een treinstation met directe verbindingen naar diverse grote steden. Daarnaast zijn er goede busverbindingen in de omgeving, waardoor ook het openbaar vervoer uitstekend geregeld is.

KENMERKEN
- Recent gerenoveerde en turn key helft van een dubbele villa
- Gelegen op een prachtige locatie nabij het bruisende centrum van Laren
- Heerlijke familiewoning van ca. 164 m², met 4 slaapkamers
- Moderne open keuken voorzien van diverse luxe inbouwapparatuur
- Ruime zonnige voor- en achtertuin
- Gelegen op een perceel van ca. 500 m², met elektrisch hek
- Parkeergelegenheid op eigen terrein voor ca. 3 auto’s
- Bouwjaar 1957
- Energielabel A
- Verkoop onder voorbehoud gunning verkoper

Voor een bezichtiging van deze sfeervolle helft van een dubbele villa gelegen op een toplocatie in Laren kunt u contact opnemen met Aldert J. Froma, NVM Makelaar van ons kantoor in Laren. Nog beter is om uw eigen NVM aankoopmakelaar mee te nemen.

Toon meer

Foto's

De buurt

Wij vertellen je graag wat over de omgeving.

Leeftijd in gemeente
0 - 15 jaar
15 - 25 jaar
25-45 jaar
45 - 65 jaar
65+ jaar
  • 0 - 15 jaar
  • 15 - 25 jaar
  • 25 - 45 jaar
  • 45 - 65 jaar
  • 65+ jaar
Gezinnen met kinderen
Met kinderen
Zonder kinderen
Alleenstaand
  • Met kinderen
  • Zonder kinderen
  • Alleenstaand
Leeftijd buurtbewoners
0 - 15 jaar
15 - 25 jaar
25-45 jaar
45 - 65 jaar
65+ jaar
  • 0 - 15 jaar
  • 15 - 25 jaar
  • 25 - 45 jaar
  • 45 - 65 jaar
  • 65+ jaar

NVM Makelaar

Aldert Froma

Direct contact Direct contact
Voorma en Walch Makelaars in het Gooi

Contact opnemen

Voel je vrij en
neem contact op.

Wil je mooi en groen wonen in het Gooi? Of zoek je een lokale makelaar met wie je rustig jouw woonsituatie kunt bespreken? Wij nodigen je graag uit voor een cappuccino op één van onze kantoren!

Contact
';