Beschikbaar

Eierlanden 24

  • Huizen
  • |
  • 137 m2
  • |
  • 358 m2

€625.000 k.k.

Gelegen in een kindvriendelijke woonomgeving, bevindt zich deze goed onderhouden uitgebouwde hoekwoning! Deze ideale gezinswoning, met maar liefst 137m² woonoppervlak, is gelegen op loopafstand van het Gooimeer, nabij basis- en middelbare…

"Geluk zit 'm in vele dingen en prettig wonen hoort daar zeker bij"

Voorma en Walch Makelaars in het GooiHet team

Kenmerken

    Overdracht

  • Aanvaarding In overleg
  • Bouw

  • Soort woning Eengezinswoning
  • Type woning Hoekwoning
  • Soort bouw Bestaande bouw
  • Bouwjaar 1982

    Details

  • Voorzieningen Mechanische ventilatie, dakraam, glasvezel kabel
  • Ligging Aan rustige weg, in woonwijk
  • Daktype Zadeldak
  • Oppervlakten en inhoud

  • Woonoppervlakte 137 m2
  • Perceel 358 m2
  • Inhoud 463 m3
  • Indeling

  • kamers 5
  • slaapkamers 4
  • badkamer 1
  • Badkamervoorzieningen Toilet, wastafel, wastafelmeubel, inloopdouche, vloerverwarming
  • Isolatie en verwarming

  • Isolatie Dakisolatie, muurisolatie, dubbel glas
  • Soort Verwarming Cv ketel, vloerverwarming gedeeltelijk
  • Ketel bouwjaar 2018
  • Ketel gas/olie Gas
  • Ketel eigendom Eigendom
  • Energielabel

  • Energielabel B
  • Buitenruimte

  • Tuin type(n) Achtertuin
  • Hoofdtuin oppervlakte 88 m2
  • Ligging hoofdtuin Noordoost
  • Garage

  • Garagesoorten Geen garage
  • Parkeergelegenheid

  • Faciliteit Openbaar parkeren
Meer kenmerken

Omschrijving

Gelegen in een kindvriendelijke woonomgeving, bevindt zich deze goed onderhouden uitgebouwde hoekwoning! Deze ideale gezinswoning, met maar liefst 137m² woonoppervlak, is gelegen op loopafstand van het Gooimeer, nabij basis- en middelbare scholen, winkelcentrum Oostermeent en uitvalswegen.

Eind 2022 heeft er een grote verbouwing plaatsgevonden, de woning is hierbij uitgebouwd aan de achterzijde, de gehele begane grond, inclusief toilet en hal, is voorzien van comfortabele vloerverwarming. Er is een moderne keuken geplaatst met een prachtig kookeiland. Daarnaast is ook de badkamer volledig vernieuwd en voorzien van vloerverwarming! Alle wanden op de begane grond en de badkamer zijn voorzien van een coating en schrobvaste muurverf.

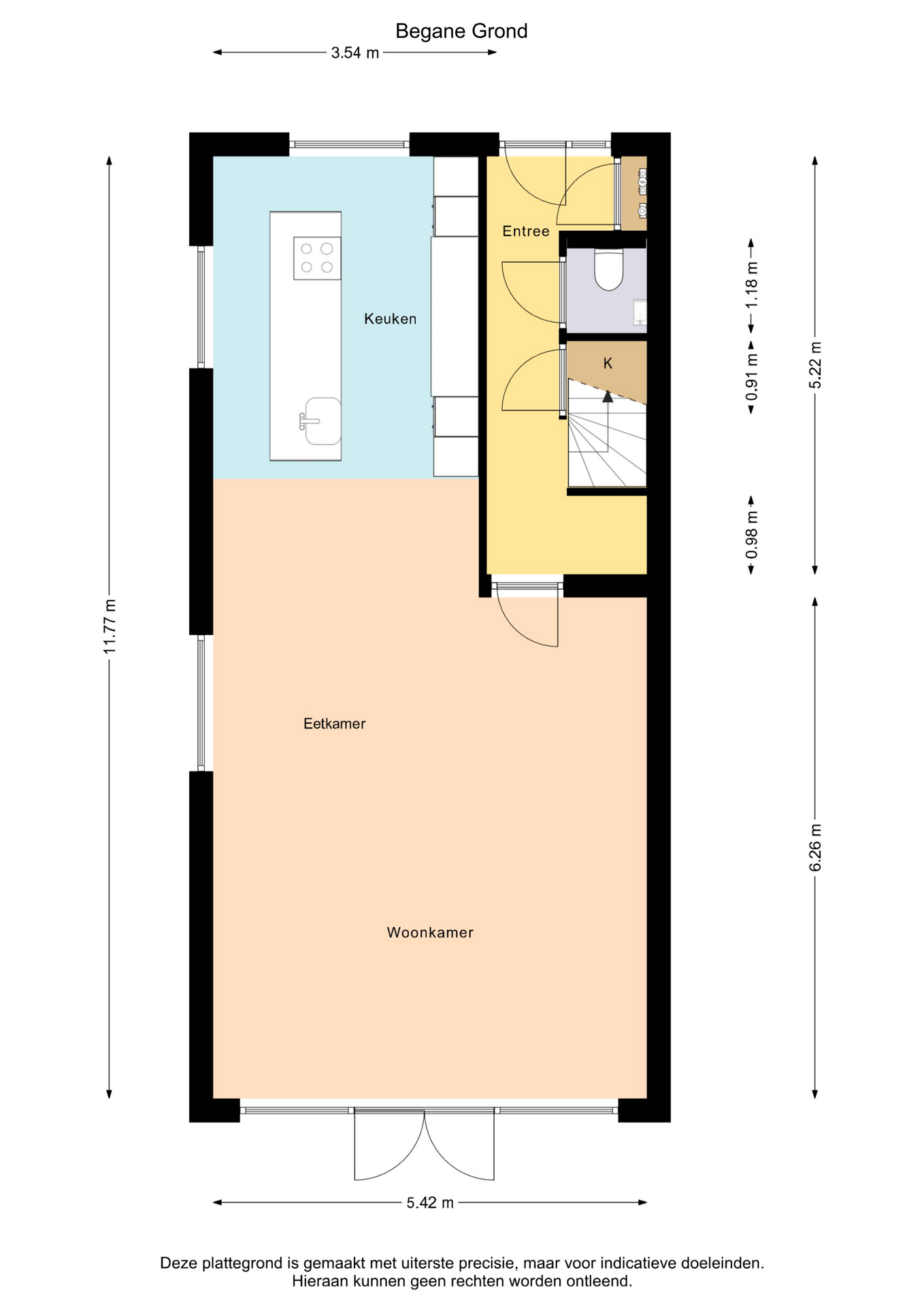
Indeling:
Entree, hal met nis voor jassen, trapkast, modern hangend toilet met fontein. Royale, uitgebouwde woonkamer met visgraat pvc vloer en openslaande deuren naar de tuin. Met de verbouwing zijn alle binnendeuren vervangen voor mooie, hoge, stompe deuren en zijn de wanden en het plafond glad gestuct. In het plafond zijn dimbare inbouwspots gerealiseerd.

De moderne keuken bevindt zich aan de voorzijde van de woning en is voorzien van een kookeiland en diverse inbouwapparatuur waaronder: Bora X Pure inductie kookplaat, dubbele koelkast, dubbele vriezer, vaatwasser,…

Gelegen in een kindvriendelijke woonomgeving, bevindt zich deze goed onderhouden uitgebouwde hoekwoning! Deze ideale gezinswoning, met maar liefst 137m² woonoppervlak, is gelegen op loopafstand van het Gooimeer, nabij basis- en middelbare scholen, winkelcentrum Oostermeent en uitvalswegen.

Eind 2022 heeft er een grote verbouwing plaatsgevonden, de woning is hierbij uitgebouwd aan de achterzijde, de gehele begane grond, inclusief toilet en hal, is voorzien van comfortabele vloerverwarming. Er is een moderne keuken geplaatst met een prachtig kookeiland. Daarnaast is ook de badkamer volledig vernieuwd en voorzien van vloerverwarming! Alle wanden op de begane grond en de badkamer zijn voorzien van een coating en schrobvaste muurverf.

Indeling:
Entree, hal met nis voor jassen, trapkast, modern hangend toilet met fontein. Royale, uitgebouwde woonkamer met visgraat pvc vloer en openslaande deuren naar de tuin. Met de verbouwing zijn alle binnendeuren vervangen voor mooie, hoge, stompe deuren en zijn de wanden en het plafond glad gestuct. In het plafond zijn dimbare inbouwspots gerealiseerd.

De moderne keuken bevindt zich aan de voorzijde van de woning en is voorzien van een kookeiland en diverse inbouwapparatuur waaronder: Bora X Pure inductie kookplaat, dubbele koelkast, dubbele vriezer, vaatwasser, oven, combi-oven magnetron, allemaal van Siemens en een Quooker kraan.

Eerste verdieping:
Overloop, 3 in grootte variërende slaapkamers en een moderne badkamer voorzien van een inloopdouche, glaswand, luxe inbouwkranen, wastafelmeubel en een hangend toilet.

Tweede verdieping:
Grote open zolderkamer welke naar wens in te delen is! Ruimschoots mogelijkheid voor het maken van extra slaapkamers. Hier bevindt zich tevens de aansluiting voor wasapparatuur. In de bergruimte bevindt zich de opstelling c.v. ketel Remeha.

De tuin is fraai aangelegd en onderhoudsvrij. Achterin de tuin bevindt zich een vrijstaande, stenen berging. Ondanks dat de achtertuin op het noordoosten is gelegen, is er gedurende de hele dag een plekje in de zon te vinden. Door de diepte van de tuin, kun je aan het begin van de avond achterin nog heerlijk zitten.

Bijzonderheden:
- Grote verbouwing in 2022
- Uitbouw aan de achterzijde van maar liefst 4 meter
- Begane grond en badkamer met vloerverwarming
- Luxe keuken en moderne badkamer (2022)
- Buitenschilderwerk januari 2024
- Tuin is fraai aangelegd
- Energielabel B

Toon meer

Foto's

De buurt

Wij vertellen je graag wat over de omgeving.

Leeftijd in gemeente
0 - 15 jaar
15 - 25 jaar
25-45 jaar
45 - 65 jaar
65+ jaar
  • 0 - 15 jaar
  • 15 - 25 jaar
  • 25 - 45 jaar
  • 45 - 65 jaar
  • 65+ jaar
Gezinnen met kinderen
Met kinderen
Zonder kinderen
Alleenstaand
  • Met kinderen
  • Zonder kinderen
  • Alleenstaand
Leeftijd buurtbewoners
0 - 15 jaar
15 - 25 jaar
25-45 jaar
45 - 65 jaar
65+ jaar
  • 0 - 15 jaar
  • 15 - 25 jaar
  • 25 - 45 jaar
  • 45 - 65 jaar
  • 65+ jaar

Downloads

NVM Makelaar

Martijn Geerdink

Direct contact Direct contact
Voorma en Walch Makelaars in het Gooi

Contact opnemen

Voel je vrij en
neem contact op.

Wil je mooi en groen wonen in het Gooi? Of zoek je een lokale makelaar met wie je rustig jouw woonsituatie kunt bespreken? Wij nodigen je graag uit voor een cappuccino op één van onze kantoren!

Contact
';