Beschikbaar

Maurice Chevalierstraat 27

  • Almere
  • |
  • 122 m2
  • |
  • 354 m2

€526.000 k.k.

RUIMTE, PRIVACY EN EEN UITZONDERLIJK DIEPE TUIN - DEZE GESCHAKELDE WONING IN MUZIEKWIJK BIEDT HET ALLEMAAL.

OMSCHRIJVING
In de geliefde Muziekwijk van Almere staat deze geschakelde eengezinswoning met eigen oprit, garage en een zeer…

"Geluk zit 'm in vele dingen en prettig wonen hoort daar zeker bij"

Voorma en Walch Makelaars in het GooiHet team

Kenmerken

    Overdracht

  • Aanvaarding In overleg
  • Bouw

  • Soort woning Eengezinswoning
  • Type woning Geschakelde woning
  • Soort bouw Bestaande bouw
  • Bouwjaar 1992

    Details

  • Voorzieningen Mechanische ventilatie, tv kabel, schuifpui, natuurlijke ventilatie
  • Ligging Aan rustige weg, in woonwijk
  • Daktype Lessenaardak
  • Oppervlakten en inhoud

  • Woonoppervlakte 122 m2
  • Oppervlakte overige functies 15 m2
  • Perceel 354 m2
  • Inhoud 511 m3
  • Indeling

  • kamers 4
  • slaapkamers 3
  • badkamer 1
  • Badkamervoorzieningen Toilet, dubbele wastafel, inloopdouche
  • Isolatie en verwarming

  • Isolatie Dakisolatie, muurisolatie, vloerisolatie, dubbel glas
  • Soort Verwarming Stadsverwarming
  • Energielabel

  • Energielabel A
  • Buitenruimte

  • Tuin type(n) Achtertuin
  • Hoofdtuin oppervlakte 220 m2
  • Ligging hoofdtuin Zuidwest
  • Garage

  • Garagesoorten Aangebouwd steen
  • Parkeergelegenheid

  • Faciliteit Openbaar parkeren, op eigen terrein
Meer kenmerken

Omschrijving

RUIMTE, PRIVACY EN EEN UITZONDERLIJK DIEPE TUIN - DEZE GESCHAKELDE WONING IN MUZIEKWIJK BIEDT HET ALLEMAAL.

OMSCHRIJVING
In de geliefde Muziekwijk van Almere staat deze geschakelde eengezinswoning met eigen oprit, garage en een zeer privé gelegen, diepe en zonnige achtertuin. Dankzij het bouwtype, waarbij de garages als tussenlid fungeren, grenst er nergens woonruimte van buren direct aan de woning. Dit zorgt voor veel rust en privacy, zowel binnen als buiten. De woning beschikt over een woonoppervlakte van 122 m², verdeeld over twee woonlagen, en een garage van circa 15 m².

Eén van de absolute pluspunten is de achtertuin: circa 20 meter diep, gunstig gelegen op het zuidwesten en deels op een talud, waardoor optimale privacy en een vrij uitzicht op het groen zijn gegarandeerd. De tuin is verzorgd aangelegd en heeft een sfeervol mediterraan karakter en beschikt over een houten tuinhuis. Dankzij de zonnige ligging is er de hele dag een fijne plek om buiten te zitten.

De woning, gebouwd rond 1992, beschikt over energielabel A en is voorzien van dak-, muur- en vloerisolatie en dubbele beglazing. De ligging maakt de woning bovendien zeer geschikt voor het plaatsen van…

RUIMTE, PRIVACY EN EEN UITZONDERLIJK DIEPE TUIN - DEZE GESCHAKELDE WONING IN MUZIEKWIJK BIEDT HET ALLEMAAL.

OMSCHRIJVING
In de geliefde Muziekwijk van Almere staat deze geschakelde eengezinswoning met eigen oprit, garage en een zeer privé gelegen, diepe en zonnige achtertuin. Dankzij het bouwtype, waarbij de garages als tussenlid fungeren, grenst er nergens woonruimte van buren direct aan de woning. Dit zorgt voor veel rust en privacy, zowel binnen als buiten. De woning beschikt over een woonoppervlakte van 122 m², verdeeld over twee woonlagen, en een garage van circa 15 m².

Eén van de absolute pluspunten is de achtertuin: circa 20 meter diep, gunstig gelegen op het zuidwesten en deels op een talud, waardoor optimale privacy en een vrij uitzicht op het groen zijn gegarandeerd. De tuin is verzorgd aangelegd en heeft een sfeervol mediterraan karakter en beschikt over een houten tuinhuis. Dankzij de zonnige ligging is er de hele dag een fijne plek om buiten te zitten.

De woning, gebouwd rond 1992, beschikt over energielabel A en is voorzien van dak-, muur- en vloerisolatie en dubbele beglazing. De ligging maakt de woning bovendien zeer geschikt voor het plaatsen van zonnepanelen.

LOCATIE
De Maurice Chevalierstraat is een rustige en kindvriendelijke straat met voornamelijk bestemmingsverkeer. Speeltuinen, basisscholen, supermarkten, kinderopvang en winkelcentrum Muziekwijk liggen op loopafstand. Treinstation Almere Muziekwijk is snel per fiets bereikbaar en een bushalte bevindt zich op korte afstand.

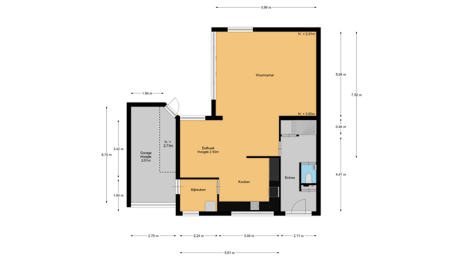
INDELING
Begane grond:
Entree, hal, meterkast, toilet met fonteintje, ruime woonkamer met prachtige lichtinval, schuifpui naar de beschutte achtertuin, eetkamer en open keuken met inbouwapparatuur. Via de bijkeuken met wasmachineaansluiting is de garage bereikbaar. De garage is voorzien van elektra, verwarming en een handige vliering.

Eerste verdieping:
Overloop, drie in grootte variërende slaapkamers en een badkamer met douche, dubbele wastafel en toilet.

BIJZONDERHEDEN
- Energielabel A
- Diepe en zonnige achtertuin (ca. 20 meter, zuidwest)
- Veel privacy door bouwtype
- Verwarming en warm water via stadsverwarming
- Parkeren op eigen terrein (mogelijkheid voor twee auto’s)
- Woonoppervlakte 122 m², met diverse uitbreidingsmogelijkheden
- Bouwkundig rapport ter inzage
- Ouderdomsclausule en niet-zelfbewoningsclausule van toepassing
- Oplevering in overleg

FLEXIBILITEIT & UITBREIDINGSMOGELIJKHEDEN
Deze woning is ideaal voor wie extra ruimte of multifunctioneel gebruik zoekt:
- Extra kamer: De garage kan worden omgebouwd tot een extra slaapkamer, kantoorruimte of studentenkamer, eventueel met uitbreiding naar de bijkeuken. Vervang de garagedeur door een groot raam voor extra lichtinval.
- Tiny house: De diepe tuin biedt ruimte voor een tiny house als gastenverblijf, mantelzorg- of mobiele studentenwoning (onder voorbehoud van omgevingsvergunning). Met een loopdeur in de garage creëert u een privétoegang.
- Buitenleven: De tuin beschikt over tuinverlichting én waterdichte buitenstopcontacten. Perfect voor een jacuzzi, sauna, veranda, tuinkamer of buitenkeuken. De huidige schuur kan worden vervangen door een kweekkas, of worden verwijderd voor extra terrasruimte.

Voor een bezichtiging van deze woning kunt u contact opnemen met Tiffany de Beer, Register Makelaar Register Taxateur. Nog beter is om uw eigen NVM aankoopmakelaar mee te nemen.

Toon meer

Foto's

Plattegronden

De buurt

Wij vertellen je graag wat over de omgeving.

Leeftijd in gemeente
0 - 15 jaar
15 - 25 jaar
25-45 jaar
45 - 65 jaar
65+ jaar
  • 0 - 15 jaar
  • 15 - 25 jaar
  • 25 - 45 jaar
  • 45 - 65 jaar
  • 65+ jaar
Gezinnen met kinderen
Met kinderen
Zonder kinderen
Alleenstaand
  • Met kinderen
  • Zonder kinderen
  • Alleenstaand
Leeftijd buurtbewoners
0 - 15 jaar
15 - 25 jaar
25-45 jaar
45 - 65 jaar
65+ jaar
  • 0 - 15 jaar
  • 15 - 25 jaar
  • 25 - 45 jaar
  • 45 - 65 jaar
  • 65+ jaar

NVM Register Makelaar - Register Taxateur

Tiffany de Beer

Direct contact Direct contact
Voorma en Walch Makelaars in het Gooi

Contact opnemen

Voel je vrij en
neem contact op.

Wil je mooi en groen wonen in het Gooi? Of zoek je een lokale makelaar met wie je rustig jouw woonsituatie kunt bespreken? Wij nodigen je graag uit voor een cappuccino op één van onze kantoren!

Contact
';