Beschikbaar

Neuweg 32

  • Hilversum
  • |
  • 126 m2
  • |
  • 142 m2

€775.000 k.k.

Volledig en hoogwaardig gerenoveerde karakteristieke woning uit circa 1900, waarbij in 2025/2026 de indeling en afwerking zorgvuldig zijn vernieuwd. De woning onderscheidt zich door de opvallende breedte, hoge plafonds tot circa 3,2 meter en de…

"Geluk zit 'm in vele dingen en prettig wonen hoort daar zeker bij"

Voorma en Walch Makelaars in het GooiHet team

Kenmerken

    Overdracht

  • Aanvaarding In overleg
  • Bouw

  • Soort woning Eengezinswoning
  • Type woning Twee onder een kapwoning
  • Soort bouw Bestaande bouw
  • Bouwjaar 1900

    Details

  • Voorzieningen Mechanische ventilatie, glasvezel kabel, zonnepanelen
  • Ligging In woonwijk
  • Daktype Zadeldak
  • Oppervlakten en inhoud

  • Woonoppervlakte 126 m2
  • Oppervlakte overige functies 13 m2
  • Perceel 142 m2
  • Inhoud 535 m3
  • Indeling

  • kamers 4
  • slaapkamers 3
  • badkamer 1
  • Badkamervoorzieningen Zitbad, dubbele wastafel, inloopdouche, vloerverwarming
  • Isolatie en verwarming

  • Isolatie Dakisolatie, muurisolatie, vloerisolatie, volledig geisoleerd
  • Soort Verwarming Cv ketel, vloerverwarming gedeeltelijk
  • Ketel bouwjaar 2026
  • Ketel gas/olie Gas
  • Ketel eigendom Eigendom
  • Energielabel

  • Energielabel A
  • Buitenruimte

  • Tuin type(n) Achtertuin
  • Hoofdtuin oppervlakte 34 m2
  • Ligging hoofdtuin West
  • Garage

  • Garagesoorten Geen garage
  • Parkeergelegenheid

  • Faciliteit Betaald parkeren, parkeervergunningen
Meer kenmerken

Omschrijving

Volledig en hoogwaardig gerenoveerde karakteristieke woning uit circa 1900, waarbij in 2025/2026 de indeling en afwerking zorgvuldig zijn vernieuwd. De woning onderscheidt zich door de opvallende breedte, hoge plafonds tot circa 3,2 meter en de prettige lichtinval.

Bij binnenkomst valt direct op hoe logisch en prettig de woning is ingedeeld. De combinatie van de breedte en de hoogte zorgt voor een verrassend gevoel van ruimte, dat je aan de buitenzijde niet direct verwacht. Tijdens de renovatie is de woning vrijwel volledig gemoderniseerd, waarbij enkele karakteristieke elementen behouden zijn gebleven, zoals de draagbalken in de kapconstructie, de kozijnen en het gevelaanzicht.

De woning is op diverse punten verbeterd en verduurzaamd. Zo is de woning volledig geïsoleerd (vloer-, wand- en dakisolatie) en voorzien van HR++ beglazing. Daarnaast zijn er 6 zonnepanelen aanwezig en is de woning uitgerust met een energiezuinige cv-ketel. Op de begane grond is vloerverwarming aangebracht, evenals in de badkamer. De afwerking is strak en verzorgd.

Met circa 126 m² woonoppervlakte beschikt de woning over een ruime parterre met mogelijkheden voor een extra werkkamer, drie ruimtelijke slaapkamers en een strakke en sfeervolle afwerking.

De woning ligt in de geliefde woonwijk…

Volledig en hoogwaardig gerenoveerde karakteristieke woning uit circa 1900, waarbij in 2025/2026 de indeling en afwerking zorgvuldig zijn vernieuwd. De woning onderscheidt zich door de opvallende breedte, hoge plafonds tot circa 3,2 meter en de prettige lichtinval.

Bij binnenkomst valt direct op hoe logisch en prettig de woning is ingedeeld. De combinatie van de breedte en de hoogte zorgt voor een verrassend gevoel van ruimte, dat je aan de buitenzijde niet direct verwacht. Tijdens de renovatie is de woning vrijwel volledig gemoderniseerd, waarbij enkele karakteristieke elementen behouden zijn gebleven, zoals de draagbalken in de kapconstructie, de kozijnen en het gevelaanzicht.

De woning is op diverse punten verbeterd en verduurzaamd. Zo is de woning volledig geïsoleerd (vloer-, wand- en dakisolatie) en voorzien van HR++ beglazing. Daarnaast zijn er 6 zonnepanelen aanwezig en is de woning uitgerust met een energiezuinige cv-ketel. Op de begane grond is vloerverwarming aangebracht, evenals in de badkamer. De afwerking is strak en verzorgd.

Met circa 126 m² woonoppervlakte beschikt de woning over een ruime parterre met mogelijkheden voor een extra werkkamer, drie ruimtelijke slaapkamers en een strakke en sfeervolle afwerking.

De woning ligt in de geliefde woonwijk Bloemenkwartier Noord, op loopafstand van het centrum van Hilversum. In de directe omgeving bevinden zich de Gijsbrecht van Amstelstraat met een breed aanbod aan winkels en horeca en de Hoorneboegse Heide voor ontspanning in de natuur. Zowel station Hilversum als Hilversum Sportpark zijn goed bereikbaar, met directe verbindingen naar onder andere Amsterdam en Utrecht. Ook de uitvalswegen richting A1 en A27 zijn snel te bereiken.

INDELING:
Begane grond:
Entree, hal met garderobe, meterkast en een modern toilet met wastafel. Ruime L-vormige woon- en eetkamer met veel lichtinval. Aan de achterzijde ligt de tuinkamer met openslaande deuren naar de stadstuin op het westen (ca. 34 m²). Vanuit de keuken is de provisiekelder te bereiken.

De halfopen keuken (2025) is strak uitgevoerd en voorzien van diverse inbouwapparatuur, waaronder een inductiekookplaat, oven, vaatwasser en koelkast. Aansluitend bevindt zich een praktische bijkeuken.

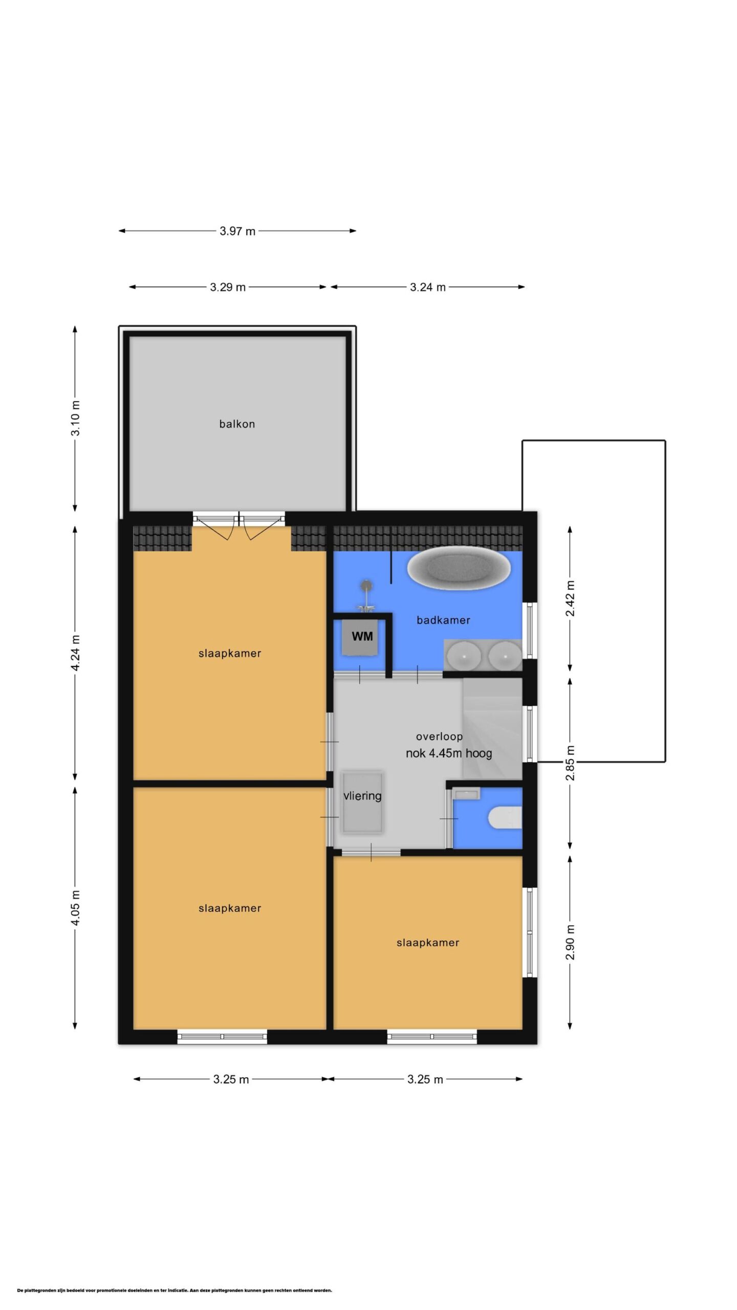
Eerste verdieping:
Overloop met toegang tot drie slaapkamers van goed formaat, waarvan één met openslaande deuren naar een balkon/dakterras (ca. 11 m²).

De badkamer is modern uitgevoerd en voorzien van een ligbad, inloopdouche, dubbel wastafelmeubel, verwarmde spiegel en vloerverwarming. Daarnaast is er een separaat toilet. Op deze verdieping bevindt zich tevens een aparte, afsluitbare ruimte ingericht als wasruimte met aansluiting voor wasmachine en droger.

Vliering:
Ruimte met de cv-opstelling (2026) en extra bergruimte.

BIJZONDERHEDEN:
- Volledig en hoogwaardig gerenoveerd in 2025/2026
- Leidingwerk en elektra vernieuwd
- Provisiekelder aanwezig
- Turn-key woning
- Woonoppervlakte ca. 126 m²
- Volledig geïsoleerd (vloer-, wand- en dakisolatie + HR++ glas)
- Voorzien van 6 zonnepanelen
- Energiezuinige cv-ketel (2026)
- Energielabel A
- Vloerverwarming op de begane grond en in de badkamer
- Stadstuin op het westen (ca. 34 m²)
- Balkon/dakterras op de verdieping
- Gelegen in Bloemenkwartier Noord, op loopafstand van het centrum
- Goede bereikbaarheid
- Parkeren middels parkeervergunning
- Transport kan snel

Bent u op zoek naar een keurig afgewerkt en direct te betrekken woning? Onze makelaars, Tiffany de Beer en Stijn Lommers laten u deze woning graag persoonlijk zien!

Toon meer

Foto's

Plattegronden

De buurt

Wij vertellen je graag wat over de omgeving.

Leeftijd in gemeente
0 - 15 jaar
15 - 25 jaar
25-45 jaar
45 - 65 jaar
65+ jaar
  • 0 - 15 jaar
  • 15 - 25 jaar
  • 25 - 45 jaar
  • 45 - 65 jaar
  • 65+ jaar
Gezinnen met kinderen
Met kinderen
Zonder kinderen
Alleenstaand
  • Met kinderen
  • Zonder kinderen
  • Alleenstaand
Leeftijd buurtbewoners
0 - 15 jaar
15 - 25 jaar
25-45 jaar
45 - 65 jaar
65+ jaar
  • 0 - 15 jaar
  • 15 - 25 jaar
  • 25 - 45 jaar
  • 45 - 65 jaar
  • 65+ jaar

NVM Register Makelaar - Register Taxateur

Tiffany de Beer

Direct contact Direct contact
Voorma en Walch Makelaars in het Gooi

Contact opnemen

Voel je vrij en
neem contact op.

Wil je mooi en groen wonen in het Gooi? Of zoek je een lokale makelaar met wie je rustig jouw woonsituatie kunt bespreken? Wij nodigen je graag uit voor een cappuccino op één van onze kantoren!

Contact
';