Ingetrokken tijdelijk

Schapendrift 2 A

  • Laren
  • |
  • 83 m2
  • |

€475.000 k.k.

Ruim en licht appartement met dakterras in het hart van Laren!

Welkom aan de Schapendrift 2A te Laren! Dit royale appartement van ca. 83 m² combineert ruimte, comfort en een ideale ligging. Met een woonkamer, eetkamer, moderne keuken,…

"Geluk zit 'm in vele dingen en prettig wonen hoort daar zeker bij"

Voorma en Walch Makelaars in het GooiHet team

Kenmerken

    Overdracht

  • Aanvaarding In overleg
  • Bouw

  • Soort bouw Bestaande bouw
  • Bouwjaar 1954

    Details

  • Voorzieningen Mechanische ventilatie
  • Ligging Aan rustige weg, in centrum, in woonwijk
  • Daktype Samengesteld dak
  • Oppervlakten en inhoud

  • Woonoppervlakte 83 m2
  • Inhoud 264 m3
  • Indeling

  • kamers 5
  • slaapkamers 3
  • Isolatie en verwarming

  • Isolatie Dakisolatie, muurisolatie, gedeeltelijk dubbel glas
  • Soort Verwarming Cv ketel
  • Ketel gas/olie Gas
  • Energielabel

  • Energielabel D
  • Buitenruimte

    Garage

  • Garagesoorten Geen garage
  • Parkeergelegenheid

  • Faciliteit Openbaar parkeren
Meer kenmerken

Omschrijving

Ruim en licht appartement met dakterras in het hart van Laren!

Welkom aan de Schapendrift 2A te Laren! Dit royale appartement van ca. 83 m² combineert ruimte, comfort en een ideale ligging. Met een woonkamer, eetkamer, moderne keuken, badkamer, apart toilet en maar liefst 3 slaapkamers, is dit een heerlijk thuis voor wie houdt van ruimte en gemak.

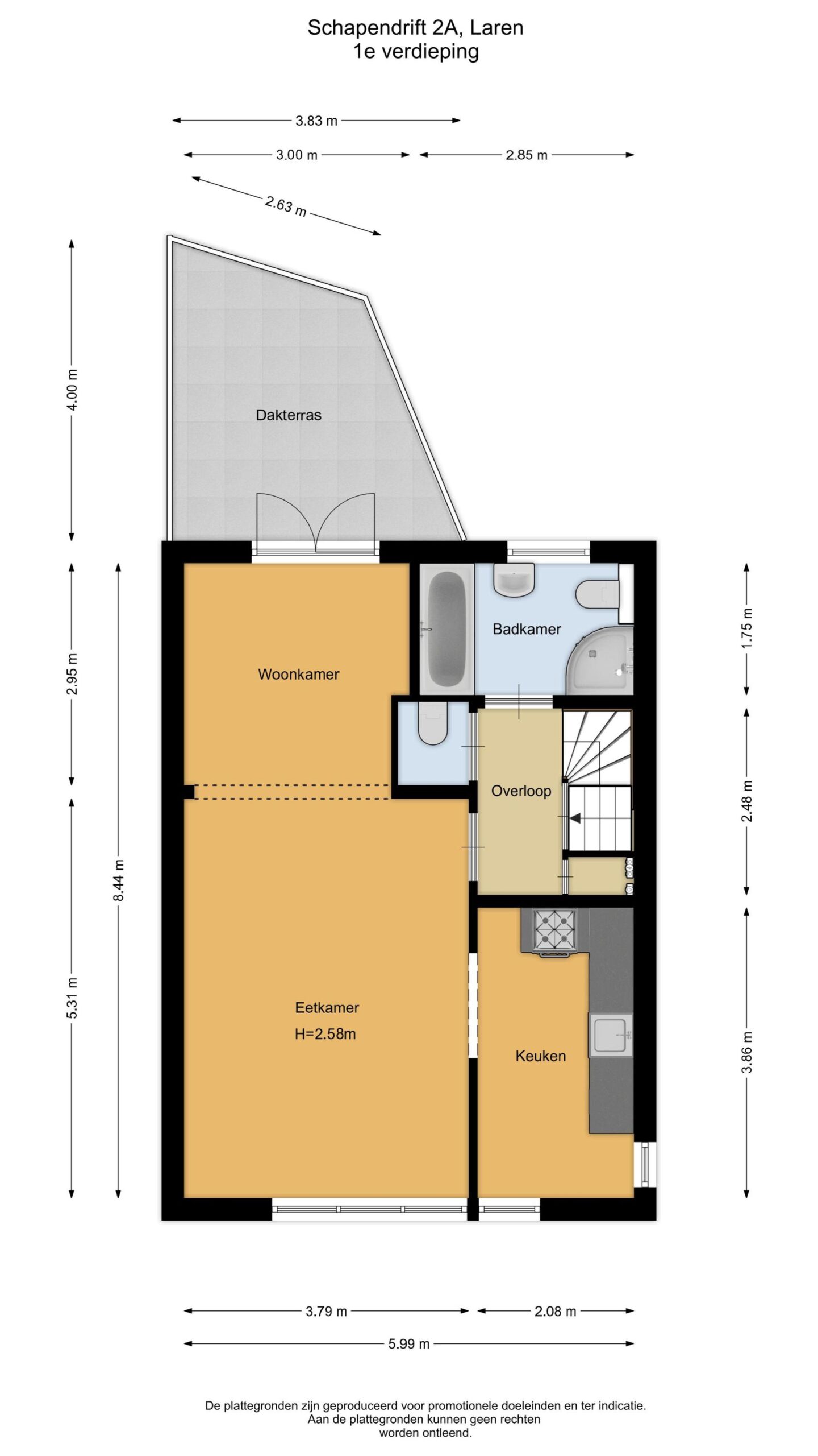
INDELING
Via de gemeenschappelijke hal komt u op de eerste verdieping. Trap omhoog naar de overloop met een aparte wc, badkamer en toegang naar de royale en lichte eetkamer aan de voorzijde van de woning. De goed uitgeruste keuken bevindt zich eveneens aan de voorzijde. Via de woonkamer aan de achterzijde bieden openslaande deuren toegang tot het royale dakterras met ligging op het oosten, waar u kunt genieten van de buitenlucht en privacy.
De badkamer is voorzien van een wastafel, wc, douche en bad.
Trap naar de tweede verdieping met een ruime overloop en maar liefst drie slaapkamers, ideaal voor wie een inloopkast, logeerkamer of comfortabele thuiswerkplek wil.
Tenslotte is er nog een inpandige bergzolder aanwezig.

LIGGING & BEREIKBAARHEID
Deze locatie combineert de rust van een dorpse…

Ruim en licht appartement met dakterras in het hart van Laren!

Welkom aan de Schapendrift 2A te Laren! Dit royale appartement van ca. 83 m² combineert ruimte, comfort en een ideale ligging. Met een woonkamer, eetkamer, moderne keuken, badkamer, apart toilet en maar liefst 3 slaapkamers, is dit een heerlijk thuis voor wie houdt van ruimte en gemak.

INDELING
Via de gemeenschappelijke hal komt u op de eerste verdieping. Trap omhoog naar de overloop met een aparte wc, badkamer en toegang naar de royale en lichte eetkamer aan de voorzijde van de woning. De goed uitgeruste keuken bevindt zich eveneens aan de voorzijde. Via de woonkamer aan de achterzijde bieden openslaande deuren toegang tot het royale dakterras met ligging op het oosten, waar u kunt genieten van de buitenlucht en privacy.
De badkamer is voorzien van een wastafel, wc, douche en bad.
Trap naar de tweede verdieping met een ruime overloop en maar liefst drie slaapkamers, ideaal voor wie een inloopkast, logeerkamer of comfortabele thuiswerkplek wil.
Tenslotte is er nog een inpandige bergzolder aanwezig.

LIGGING & BEREIKBAARHEID
Deze locatie combineert de rust van een dorpse omgeving met de levendigheid van een bruisend centrum. Op loopafstand vindt u een diversiteit aan boetieks, gezellige cafés en uitstekende restaurants, waardoor het dagelijks leven zowel comfortabel als plezierig is.
Laren staat bekend om zijn rijke culturele erfgoed en groene omgeving. Het nabijgelegen Singer Laren, een museum en theater, biedt een breed scala aan kunst en culturele evenementen. Daarnaast nodigen de omliggende natuurgebieden uit tot ontspannende wandelingen en fietstochten, waardoor natuurliefhebbers volop aan hun trekken komen.
De bereikbaarheid is uitstekend te noemen. Met de auto bent u binnen enkele minuten op de snelwegen A1 en A27, wat snelle verbindingen biedt naar steden zoals Amsterdam en Utrecht. Openbaar vervoer is eveneens goed, de dichtstbijzijnde bushalte bevindt zich op slechts 150 meter afstand, waardoor omliggende plaatsen eenvoudig te bereiken zijn.

BIJZONDERHEDEN
- Royaal appartement van ca. 83 m² (NEN2580 Meetrapport beschikbaar)
- Drie slaapkamers
- Heerlijk dakterras van ca. 11 m² gelegen op het oosten
- Moderne keuken en badkamer met ligbad en aparte douche
- Dubbele beglazing en goed onderhouden
- Gelegen op loop-/fietsafstand van het gezellige centrum van Laren én de Postiljonheide
- Gezamenlijke entree met slechts één ander appartement
- Vereniging van eigenaren is in oprichting
- VVE Servicekosten nader te bepalen na oprichting
- Bouwjaar 1954
- Energielabel D
- Oplevering in overleg, kan snel
- Niet zelfbewoningsclausule van toepassing
- Verkoop onder voorbehoud gunning verkoper

Voor een rondleiding door dit top appartement nabij het centrum van Laren kunt u contact opnemen met Bart H.A.M. Lammerts, NVM Makelaar of Aldert J. Froma, NVM Makelaar van ons makelaarskantoor Laren. Nog beter is om uw eigen NVM makelaar mee te nemen.

Deze informatie is door ons met de nodige zorgvuldigheid samengesteld. Onzerzijds wordt echter geen enkele aansprakelijkheid aanvaard voor enige onvolledigheid, onjuistheid of anderszins, dan wel de gevolgen daarvan. Alle opgegeven maten en oppervlakten zijn indicatief. Koper heeft zijn eigen onderzoek plicht naar alle zaken die voor hem of haar van belang zijn. Met betrekking tot deze woning is de makelaar adviseur van verkoper. Wij adviseren u een deskundige (NVM-)makelaar in te schakelen die u begeleidt bij het aankoopproces. Indien u specifieke wensen heeft omtrent de woning, adviseren wij u deze tijdig kenbaar te maken aan uw aankopend makelaar en hiernaar zelfstandig onderzoek te (laten) doen. Indien u geen deskundige vertegenwoordiger inschakelt, acht u zich volgens de wet deskundige genoeg om alle zaken die van belang zijn te kunnen overzien. Van toepassing zijn de NVM voorwaarden.

Toon meer

Foto's

Plattegronden

NVM Makelaar

Bart Lammerts

Direct contact Direct contact
Voorma en Walch Makelaars in het Gooi

Contact opnemen

Voel je vrij en
neem contact op.

Wil je mooi en groen wonen in het Gooi? Of zoek je een lokale makelaar met wie je rustig jouw woonsituatie kunt bespreken? Wij nodigen je graag uit voor een cappuccino op één van onze kantoren!

Contact
';