Beschikbaar

Deltazijde 30 H

  • Blaricum
  • |
  • 57 m2

€ 1.650 P/M

Kenmerken

  • Status Beschikbaar
  • Hoofdfunctie Bedrijfsruimte
  • Bouwjaar 2023
  • Bedrijfsoppervlakte 57 m2
  • Oppervlakte kantoor ca. 56 m2
  • Oppervlakte bedrijfsruimte ca. 57 m2
  • Niet overdekte parkeerplaatsen 2
  • Vraagprijs € 1.650,- p/m
  • Bouwvorm Bestaande bouw
  • Staat onderhoud binnen Uitstekend
  • Staat onderhoud buiten Uitstekend
Meer kenmerken

Omschrijving

Nieuw in de verhuur, een bijzonder goed afgewerkte bedrijfsruimte met kantoorruimte. Uitstekend gelegen op het bedrijventerrein aan de Blaricummermeent in Blaricum.

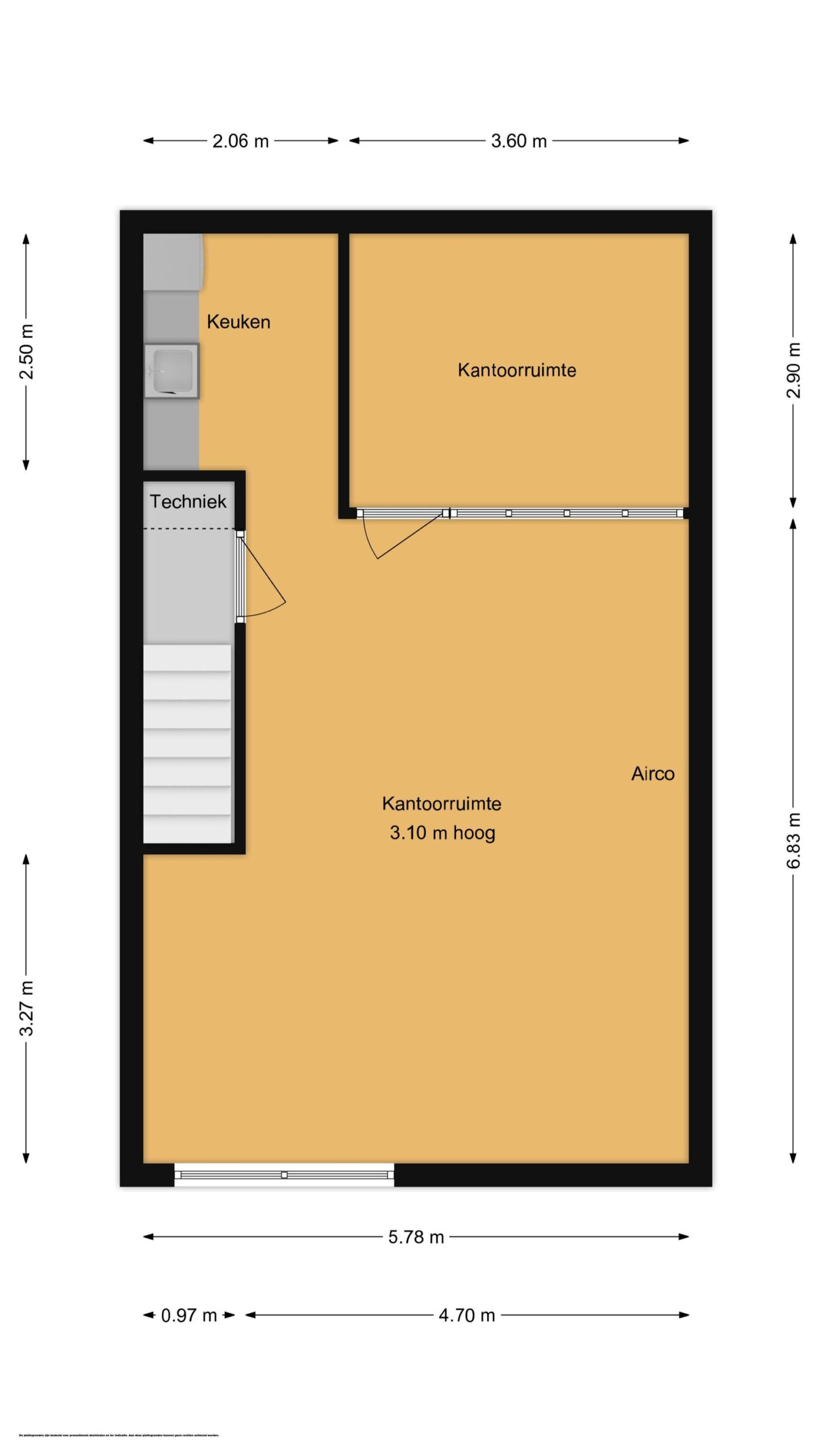
De begane grond van beschikt over circa. 57 m² en biedt een veelzijdige werkruimte die gemakkelijk toegankelijk is via de overheaddeur alsmede een zelfstandige loopdeur.

De gestuukte wanden zorgen voor een nette uitstraling. Middels een nieuw klimaatsysteem bent u verzekerd van een aangename werkomgeving in de koudere en warmere maanden van het jaar. Het toilet en de douche bevinden zich op de begane grond. De bedrijfsruimte beschikt over heldere ledverlichting en een separate uitstortbak met spatwand.

Op de eerste etage beschikt de bedrijfsruimte over een vloeroppervlak van circa. 56 m². Deze etage is voorzien van een strakke PVC visgraatvloer. Middels een stalen glazenwand beschikt de ruimte over een afgesloten vergader/werkkamer. Daarnaast is er een pantry aanwezig voorzien van een spoelbak, vaatwasser, stoomoven en koelkast met vriesvak. Boven het systeemplafond bevindt zich het balansventilatiesysteem met warmteterugwinning. Ook deze etage is te verwarmen en koelen middels een airco.

Locatie
Bedrijventerrein Blaricummermeent aan de Noord-Oostzijde van Blaricum, gelegen op circa 4 autominuten van de A27.

Vloeroppervlak
Totaal circa. 113…

Nieuw in de verhuur, een bijzonder goed afgewerkte bedrijfsruimte met kantoorruimte. Uitstekend gelegen op het bedrijventerrein aan de Blaricummermeent in Blaricum.

De begane grond van beschikt over circa. 57 m² en biedt een veelzijdige werkruimte die gemakkelijk toegankelijk is via de overheaddeur alsmede een zelfstandige loopdeur.

De gestuukte wanden zorgen voor een nette uitstraling. Middels een nieuw klimaatsysteem bent u verzekerd van een aangename werkomgeving in de koudere en warmere maanden van het jaar. Het toilet en de douche bevinden zich op de begane grond. De bedrijfsruimte beschikt over heldere ledverlichting en een separate uitstortbak met spatwand.

Op de eerste etage beschikt de bedrijfsruimte over een vloeroppervlak van circa. 56 m². Deze etage is voorzien van een strakke PVC visgraatvloer. Middels een stalen glazenwand beschikt de ruimte over een afgesloten vergader/werkkamer. Daarnaast is er een pantry aanwezig voorzien van een spoelbak, vaatwasser, stoomoven en koelkast met vriesvak. Boven het systeemplafond bevindt zich het balansventilatiesysteem met warmteterugwinning. Ook deze etage is te verwarmen en koelen middels een airco.

Locatie
Bedrijventerrein Blaricummermeent aan de Noord-Oostzijde van Blaricum, gelegen op circa 4 autominuten van de A27.

Vloeroppervlak
Totaal circa. 113 m² verhuurbaar vloeroppervlak, verdeeld over de begane grond en de etage.

Afmetingen overheaddeur
Circa. 3 x 3 meter

Bestemming
Informatie inzake gebruiksmogelijkheden en voorschriften is te verkrijgen bij de gemeente Blaricum.

Parkeren
Op het eigen terrein zijn 2 parkeerplaatsen beschikbaar.

Aanvangshuurprijs
€ 1.650,- per maand, exclusief BTW exclusief servicekosten.

BTW
Uitgangspunt is een met BTW belaste huurprijs. Indien een huurder niet voldoet aan de voor belaste verhuur gestelde criteria zal de huurprijs zodanig worden verhoogd dat het voor verhuurder ontstane financiële nadeel volledig wordt gecompenseerd.

Indexering
De huurprijs zal jaarlijks, voor het eerst 1 jaar na de ingangsdatum, worden verhoogd op basis van de consumentenprijsindex (CPI), reeks CPI "Alle huishoudens" (2015 = 100), zoals wordt gepubliceerd door het Centraal Bureau voor de Statistiek (CBS).

Servicekosten en VVE
De servicekosten bedragen op basis van een bijdrage circa € 190,- per maand exclusief BTW (nader exact vast te stellen), inzake de navolgende door verhuurder / VVE te verzorgen leveringen en diensten:
- Algemeen onderhoud buitenterrein
- Opstalverzekering
- Jaarlijkse controle brandblussers
- Gevelreiniging
- Glasbewassing
- Administratiekosten

De huurder dient rechtstreeks met de desbetreffende NUTS en data leveranciers contracten af te sluiten, de units is voorzien van zelfstandige water en elektra meters.

Betalingen
Per maand vooruit te voldoen.

Opzegtermijn
12 maanden voor de expiratiedatum.

Beschikbaar
Per 1 september 2026.

Zekerheidsstelling
Een bankgarantie ter grootte van drie maanden huur en servicekosten te vermeerderen met BTW.

Huurovereenkomst
De huurovereenkomst zal zijn gebaseerd op het model zoals is vastgesteld door de Raad voor Onroerende Zaken (ROZ), inclusief de algemene bepalingen.

Aanvaarding
Verhuurder behoudt zich het recht van gunning voor.

Voor meer informatie betreffende deze bedrijfsruimte in Blaricum of andere objecten kunt u ons natuurlijk gewoon even bellen, 035-5399082. U bent van harte welkom op ons kantoor in Hilversum, 's-Gravelandseweg 27, voor een kop koffie.

Met vriendelijke groet,
Voorma en Walch Bedrijfsmakelaars

Toon meer

Foto's

Locatie

Ontdek de verschillende voorzieningen in de buurt

In de buurt

    De buurt

    Wij vertellen je graag wat over de omgeving.

    Leeftijd in gemeente
    0 - 15 jaar
    15 - 25 jaar
    25-45 jaar
    45 - 65 jaar
    65+ jaar
    • 0 - 15 jaar
    • 15 - 25 jaar
    • 25 - 45 jaar
    • 45 - 65 jaar
    • 65+ jaar
    Gezinnen met kinderen
    Met kinderen
    Zonder kinderen
    Alleenstaand
    • Met kinderen
    • Zonder kinderen
    • Alleenstaand
    Leeftijd buurtbewoners
    0 - 15 jaar
    15 - 25 jaar
    25-45 jaar
    45 - 65 jaar
    65+ jaar
    • 0 - 15 jaar
    • 15 - 25 jaar
    • 25 - 45 jaar
    • 45 - 65 jaar
    • 65+ jaar

    Contact opnemen

    Voel je vrij en
    neem contact op.

    Zoek je een lokale makelaar met wie je rustig jouw mogelijkheden op het gebied van bedrijfsonroerendgoed kunt bespreken? Wij nodigen je graag uit voor een cappuccino op ons kantoor in Hilversum!

    Contact
    ';