Verkocht

Driftweg 51

  • Huizen
  • |
  • 89 m2
  • |
  • 166 m2

€485.000 k.k.

Deze perfect afgewerkte, instapklare tussenwoning aan de Driftweg 51 in Huizen biedt alles wat een gezin of starter zich kan wensen. De woning is volledig gemoderniseerd en strak gestuct, heeft een royale (half)buiten-serre, drie slaapkamers en…

"Geluk zit 'm in vele dingen en prettig wonen hoort daar zeker bij"

Voorma en Walch Makelaars in het GooiHet team

Kenmerken

    Overdracht

  • Aanvaarding In overleg
  • Bouw

  • Soort woning Eengezinswoning
  • Type woning Tussenwoning
  • Soort bouw Bestaande bouw
  • Bouwjaar 1953

    Details

  • Voorzieningen Rolluiken, tv kabel, buitenzonwering, dakraam, glasvezel kabel, zonnepanelen, natuurlijke ventilatie
  • Ligging Aan bosrand, in woonwijk, in bosrijke omgeving
  • Daktype Zadeldak
  • Oppervlakten en inhoud

  • Woonoppervlakte 89 m2
  • Oppervlakte overige functies 6 m2
  • Perceel 166 m2
  • Inhoud 322 m3
  • Indeling

  • kamers 4
  • slaapkamers 3
  • badkamer 1
  • Badkamervoorzieningen Toilet, wastafelmeubel, inloopdouche
  • Isolatie en verwarming

  • Isolatie Dakisolatie, muurisolatie, vloerisolatie, volledig geisoleerd
  • Soort Verwarming Cv ketel
  • Ketel bouwjaar 2010
  • Ketel gas/olie Gas
  • Ketel eigendom Eigendom
  • Energielabel

  • Energielabel B
  • Buitenruimte

  • Tuin type(n) Achtertuin
  • Hoofdtuin oppervlakte 75 m2
  • Ligging hoofdtuin Zuidoost
  • Garage

  • Garagesoorten Geen garage
  • Parkeergelegenheid

  • Faciliteit Openbaar parkeren
Meer kenmerken

Omschrijving

Deze perfect afgewerkte, instapklare tussenwoning aan de Driftweg 51 in Huizen biedt alles wat een gezin of starter zich kan wensen. De woning is volledig gemoderniseerd en strak gestuct, heeft een royale (half)buiten-serre, drie slaapkamers en een ruime zolder, en ligt op loopafstand van natuur, scholen, winkels en het centrum van Huizen.

Gebouwd in 1953 maar door de jaren heen grondig vernieuwd, combineert deze tussenwoning karakter met modern wooncomfort. De royale serre uit 2010 vormt een fijne overgang tussen binnen en buiten; doordat deze ruimte is afgesloten maar niet volledig geïsoleerd, is het een ideale plek om in elk seizoen te genieten van licht en lucht.

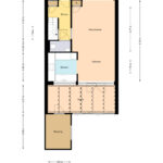
De hal met luxe trap, toilet met WC met spafunctie, toegang tot de kelder en de lichte woonkamer aan de voorzijde. De eetkamer met halfopen keuken vormt samen een sfeervolle leefruimte. De keuken is pas één jaar oud en voorzien van moderne apparatuur, waardoor koken een plezier wordt.

Op de eerste verdieping bevinden zich drie slaapkamers: aan de achterzijde een ruime slaapkamer en een kleinere kamer, aan de voorzijde een royale slaapkamer met uitzicht op het groen. De moderne badkamer is voorzien van een…

Deze perfect afgewerkte, instapklare tussenwoning aan de Driftweg 51 in Huizen biedt alles wat een gezin of starter zich kan wensen. De woning is volledig gemoderniseerd en strak gestuct, heeft een royale (half)buiten-serre, drie slaapkamers en een ruime zolder, en ligt op loopafstand van natuur, scholen, winkels en het centrum van Huizen.

Gebouwd in 1953 maar door de jaren heen grondig vernieuwd, combineert deze tussenwoning karakter met modern wooncomfort. De royale serre uit 2010 vormt een fijne overgang tussen binnen en buiten; doordat deze ruimte is afgesloten maar niet volledig geïsoleerd, is het een ideale plek om in elk seizoen te genieten van licht en lucht.

De hal met luxe trap, toilet met WC met spafunctie, toegang tot de kelder en de lichte woonkamer aan de voorzijde. De eetkamer met halfopen keuken vormt samen een sfeervolle leefruimte. De keuken is pas één jaar oud en voorzien van moderne apparatuur, waardoor koken een plezier wordt.

Op de eerste verdieping bevinden zich drie slaapkamers: aan de achterzijde een ruime slaapkamer en een kleinere kamer, aan de voorzijde een royale slaapkamer met uitzicht op het groen. De moderne badkamer is voorzien van een inloopdouche, tweede toilet en wastafelmeubel. De zolderverdieping biedt volop bergruimte en kan worden ingericht als extra slaapkamer.

De woning is uitstekend geïsoleerd (HR++ glas, gevel-, dak- en vloerisolatie) en voorzien van kunststof kozijnen, vloerverwarming met pvc-vloer (2023) en tien zonnepanelen. De zonnige tuin op het zuid/zuidoosten van het 166 m² grote perceel biedt volop mogelijkheden om te ontspannen en buiten te leven. Parkeren kan gemakkelijk in de openbare vakken voor de deur.

De Driftweg 51 in Huizen ligt op korte afstand van natuur, supermarkten, basisscholen, het centrum en uitvalswegen. Deze perfect afgewerkte gezinswoning is instap klaar en klaar voor een nieuwe bewoner die zonder klussen wil verhuizen.

Belangrijkste kenmerken
- Perfect afgewerkte, instapklare tussenwoning aan de Driftweg 51, Huizen;
- Woonoppervlakte ca. 89 m² / inhoud ca. 322 m³;
- Perceeloppervlakte 166 m²;
- Royale (half)buiten-serre uit 2010;
- Volledig gestucte wanden en moderne afwerking;
- Drie slaapkamers plus ruime zolder (mogelijkheid extra kamer);
- Moderne keuken (2024) en badkamer (2023);
- Luxe trap;
- Voorzien van rolluiken op de eerste etage;
- Uitstekende isolatie: HR++ glas, gevel-, dak- en vloerisolatie;
- Kunststof kozijnen;
- Vloerverwarming met pvc-vloer (2023);
- Tien zonnepanelen;
- Zonnige tuin op het zuid/zuidoosten met berging en achterom;
- Openbare parkeergelegenheid direct voor de deur;
- Centrale ligging nabij groen, supermarkten, basisscholen, centrum en uitvalswegen;
- Vraagprijs: € 485.000 k.k..

Voor meer informatie kunt u de makelaar van deze woning Mitch Eriks bereiken of beter nog uw eigen NVM aankoopmakelaar.

Toon meer

Foto's

De buurt

Wij vertellen je graag wat over de omgeving.

Leeftijd in gemeente
0 - 15 jaar
15 - 25 jaar
25-45 jaar
45 - 65 jaar
65+ jaar
  • 0 - 15 jaar
  • 15 - 25 jaar
  • 25 - 45 jaar
  • 45 - 65 jaar
  • 65+ jaar
Gezinnen met kinderen
Met kinderen
Zonder kinderen
Alleenstaand
  • Met kinderen
  • Zonder kinderen
  • Alleenstaand
Leeftijd buurtbewoners
0 - 15 jaar
15 - 25 jaar
25-45 jaar
45 - 65 jaar
65+ jaar
  • 0 - 15 jaar
  • 15 - 25 jaar
  • 25 - 45 jaar
  • 45 - 65 jaar
  • 65+ jaar

Downloads

NVM Makelaar / NVM Register Taxateur

Mitch Eriks

Direct contact Direct contact
Voorma en Walch Makelaars in het Gooi

Contact opnemen

Voel je vrij en
neem contact op.

Wil je mooi en groen wonen in het Gooi? Of zoek je een lokale makelaar met wie je rustig jouw woonsituatie kunt bespreken? Wij nodigen je graag uit voor een cappuccino op één van onze kantoren!

Contact
';