Beschikbaar

Loefzij 45

  • Huizen
  • |
  • 127 m2
  • |
  • 173 m2

€485.000 k.k.

Netjes onderhouden drive-in woning gelegen in een kindvriendelijke woonwijk Stad en Lande, nabij het Stadspark, kinderboerderij De Warande, winkelcentrum Kostmand, de Oostermeent en diverse scholen.

Deze ideale gezinswoning beschikt over…

"Geluk zit 'm in vele dingen en prettig wonen hoort daar zeker bij"

Voorma en Walch Makelaars in het GooiHet team

Kenmerken

    Overdracht

  • Aanvaarding In overleg
  • Bouw

  • Soort woning Eengezinswoning
  • Type woning Geschakelde woning
  • Soort bouw Bestaande bouw
  • Bouwjaar 1969

    Details

  • Voorzieningen Mechanische ventilatie, rolluiken, tv kabel, buitenzonwering, glasvezel kabel, zonnepanelen
  • Ligging Aan rustige weg, in woonwijk, beschutte ligging
  • Daktype Plat dak
  • Oppervlakten en inhoud

  • Woonoppervlakte 127 m2
  • Oppervlakte overige functies 15 m2
  • Perceel 173 m2
  • Inhoud 468 m3
  • Indeling

  • kamers 5
  • slaapkamers 4
  • badkamers 2
  • Badkamervoorzieningen Toilet, douche, wastafel, ligbad, toilet, wastafelmeubel
  • Isolatie en verwarming

  • Isolatie Dakisolatie, dubbel glas, gedeeltelijk dubbel glas
  • Soort Verwarming Cv ketel
  • Ketel bouwjaar 2019
  • Ketel gas/olie Gas
  • Ketel eigendom Eigendom
  • Energielabel

  • Energielabel C
  • Buitenruimte

  • Tuin type(n) Achtertuin
  • Hoofdtuin oppervlakte 94 m2
  • Ligging hoofdtuin Zuidoost
  • Garage

  • Garagesoorten Inpandig
  • Parkeergelegenheid

  • Faciliteit Openbaar parkeren, op eigen terrein
Meer kenmerken

Omschrijving

Netjes onderhouden drive-in woning gelegen in een kindvriendelijke woonwijk Stad en Lande, nabij het Stadspark, kinderboerderij De Warande, winkelcentrum Kostmand, de Oostermeent en diverse scholen.

Deze ideale gezinswoning beschikt over een oprit, garage met elektrisch te bedienen deur en op de begane grond een grote slaapkamer met inpandige badkamer maar dit is ook te gebruiken als multifunctionele ruimte, ideaal voor werken aan huis.
De zonnige en privacy biedende achtertuin is gelegen op het zuidoosten. De woning is gunstig gelegen ten opzichte van uitvalswegen; de A27 richting Almere/Utrecht en de A1 richting Amsterdam/Amersfoort.

Indeling:
Entree, ruime hal met meterkast en doorgang naar de verwarmde garage voorzien van aansluiting voor wasapparatuur. Via de hal tevens toegang tot de grote slaapkamer met inpandige badkamer ( douche, toilet en wastafel), vanuit deze ruimte is er toegang middels openslaande deuren tot de zonnige achtertuin.

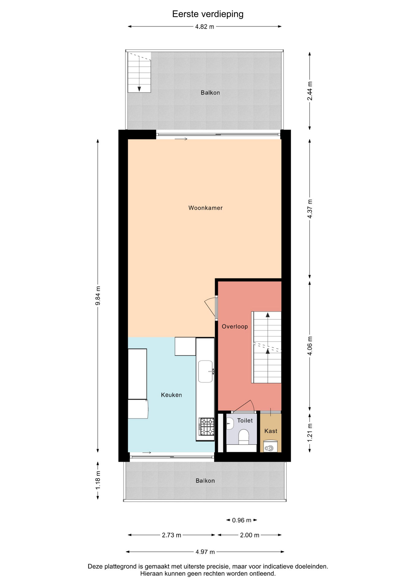
Eerste verdieping:
Overloop, bergkast met aansluiting voor de c.v., toilet met fontein en toegang tot de woonkamer. De lichte woonkamer biedt zicht op de tuin en beschikt over een schuifpui naar het vergrote balkon met zonnescherm. Vanaf het balkon is de tuin ook middels een wenteltrap bereikbaar.…

Netjes onderhouden drive-in woning gelegen in een kindvriendelijke woonwijk Stad en Lande, nabij het Stadspark, kinderboerderij De Warande, winkelcentrum Kostmand, de Oostermeent en diverse scholen.

Deze ideale gezinswoning beschikt over een oprit, garage met elektrisch te bedienen deur en op de begane grond een grote slaapkamer met inpandige badkamer maar dit is ook te gebruiken als multifunctionele ruimte, ideaal voor werken aan huis.
De zonnige en privacy biedende achtertuin is gelegen op het zuidoosten. De woning is gunstig gelegen ten opzichte van uitvalswegen; de A27 richting Almere/Utrecht en de A1 richting Amsterdam/Amersfoort.

Indeling:
Entree, ruime hal met meterkast en doorgang naar de verwarmde garage voorzien van aansluiting voor wasapparatuur. Via de hal tevens toegang tot de grote slaapkamer met inpandige badkamer ( douche, toilet en wastafel), vanuit deze ruimte is er toegang middels openslaande deuren tot de zonnige achtertuin.

Eerste verdieping:
Overloop, bergkast met aansluiting voor de c.v., toilet met fontein en toegang tot de woonkamer. De lichte woonkamer biedt zicht op de tuin en beschikt over een schuifpui naar het vergrote balkon met zonnescherm. Vanaf het balkon is de tuin ook middels een wenteltrap bereikbaar. De open keuken is voorzien van een dubbele spoelbak en diverse apparatuur Vanuit de keuken is er toegang tot het balkon aan de voorzijde.

Tweede verdieping:
Overloop, 3 in grootte variërende slaapkamers, waarvan twee met een vast kast en een elektrisch te bedienen zonwering. De badkamer beschikt over douche in ligbad, wastafel en een toilet.

De tuin is gunstig op de zon gelegen en is voorzien van veel groen, daarom veel privacy en gedurende de dag verschillende plekjes in de zon of schaduw. Achter in de tuin bevindt zich een houten schuur.

Bijzonderheden:
- 2025 14 Zonnepanelen, 425 Wp
- 2019 nieuwe cv-ketel
- elektrisch bedienbare garage
- elektrische zonwering
- energielabel C
- dak is vervangen in 2008

Voor meer informatie kunt u de makelaar Jan-Willem Baas contacten of beter nog uw eigen NVM aankoopmakelaar.

Toon meer

Foto's

De buurt

Wij vertellen je graag wat over de omgeving.

Leeftijd in gemeente
0 - 15 jaar
15 - 25 jaar
25-45 jaar
45 - 65 jaar
65+ jaar
  • 0 - 15 jaar
  • 15 - 25 jaar
  • 25 - 45 jaar
  • 45 - 65 jaar
  • 65+ jaar
Gezinnen met kinderen
Met kinderen
Zonder kinderen
Alleenstaand
  • Met kinderen
  • Zonder kinderen
  • Alleenstaand
Leeftijd buurtbewoners
0 - 15 jaar
15 - 25 jaar
25-45 jaar
45 - 65 jaar
65+ jaar
  • 0 - 15 jaar
  • 15 - 25 jaar
  • 25 - 45 jaar
  • 45 - 65 jaar
  • 65+ jaar

Downloads

NVM Makelaar

Jan Willem Baas

Direct contact Direct contact
Voorma en Walch Makelaars in het Gooi

Contact opnemen

Voel je vrij en
neem contact op.

Wil je mooi en groen wonen in het Gooi? Of zoek je een lokale makelaar met wie je rustig jouw woonsituatie kunt bespreken? Wij nodigen je graag uit voor een cappuccino op één van onze kantoren!

Contact
';