Beschikbaar

Moleneind 71 WS02

  • Kortenhoef
  • |
  • 141 m2
  • |
  • 2.995 m2

€1.795.000 k.k.

AANGEBODEN INCLUSIEF MEUBILAIR (ONTWORPEN DOOR BINNENHUISARCHITECT)

Uniek wonen en recreëren aan het water, midden in de natuur, zonder directe buren, een turn-key watervilla onder architectuur, met eigen grond en direct uitzicht over de…

"Geluk zit 'm in vele dingen en prettig wonen hoort daar zeker bij"

Voorma en Walch Makelaars in het GooiHet team

Kenmerken

    Overdracht

  • Aanvaarding In overleg
  • Bouw

  • Soort woning Woonboot
  • Type woning Vrijstaande woning
  • Soort bouw Bestaande bouw
  • Bouwjaar 2008

    Details

  • Voorzieningen Mechanische ventilatie, alarminstallatie, airconditioning, zonnecollectoren, rookkanaal, dakraam, glasvezel kabel, domotica, zonnepanelen
  • Ligging Aan water, aan rustige weg, vrij uitzicht, beschutte ligging, open ligging, aan vaarwater
  • Daktype Plat dak
  • Oppervlakten en inhoud

  • Woonoppervlakte 141 m2
  • Perceel 2.995 m2
  • Inhoud 400 m3
  • Indeling

  • kamers 4
  • slaapkamers 3
  • badkamer 1
  • Badkamervoorzieningen Ligbad, inloopdouche
  • Isolatie en verwarming

  • Isolatie Dakisolatie, muurisolatie, vloerisolatie, volledig geisoleerd
  • Soort Verwarming Open haard
  • Energielabel

  • Energielabel A++
  • Buitenruimte

  • Tuin type(n) Tuin rondom
  • Garage

  • Garagesoorten Geen garage
  • Parkeergelegenheid

  • Faciliteit Op eigen terrein
Meer kenmerken

Omschrijving

AANGEBODEN INCLUSIEF MEUBILAIR (ONTWORPEN DOOR BINNENHUISARCHITECT)

Uniek wonen en recreëren aan het water, midden in de natuur, zonder directe buren, een turn-key watervilla onder architectuur, met eigen grond en direct uitzicht over de plas.

Deze bijzondere woonark (ca. 140 m² woonoppervlak) ligt op ca. 3.000 m² eigen grond aan de recreatieplas De Wijde Blik (Natura 2000). De watervilla is ontworpen door Kolthuis, specialist in architectonische waterwoningen. Door de royale glaspartijen sta je van ’s ochtends vroeg tot laat in de avond in direct contact met het water, het riet en de wisselende lichtval, een zeldzame combinatie van privacy, ruimte en natuur op 15 autominuten van Amsterdam.

Interieur én tuin zijn ontworpen door Studio Asker, in een ingetogen Scandinavisch-Japandi palet van warm hout, natuursteen en natuurlijke stoffen. Het resultaat is een woning die internationaal werd opgemerkt: de watervilla verscheen in Scandinavian Living en op de cover van Japandi Living van Laila Rietbergen & Joost van der Krieken.

De locatie is ideaal voor natuur- en watersportliefhebbers, en biedt tegelijk volop ruimte voor kinderen en huisdieren. In de zomer barbecue je of bak je zelf pizza’s buiten in de avondzon, geniet je van…

AANGEBODEN INCLUSIEF MEUBILAIR (ONTWORPEN DOOR BINNENHUISARCHITECT)

Uniek wonen en recreëren aan het water, midden in de natuur, zonder directe buren, een turn-key watervilla onder architectuur, met eigen grond en direct uitzicht over de plas.

Deze bijzondere woonark (ca. 140 m² woonoppervlak) ligt op ca. 3.000 m² eigen grond aan de recreatieplas De Wijde Blik (Natura 2000). De watervilla is ontworpen door Kolthuis, specialist in architectonische waterwoningen. Door de royale glaspartijen sta je van ’s ochtends vroeg tot laat in de avond in direct contact met het water, het riet en de wisselende lichtval, een zeldzame combinatie van privacy, ruimte en natuur op 15 autominuten van Amsterdam.

Interieur én tuin zijn ontworpen door Studio Asker, in een ingetogen Scandinavisch-Japandi palet van warm hout, natuursteen en natuurlijke stoffen. Het resultaat is een woning die internationaal werd opgemerkt: de watervilla verscheen in Scandinavian Living en op de cover van Japandi Living van Laila Rietbergen & Joost van der Krieken.

De locatie is ideaal voor natuur- en watersportliefhebbers, en biedt tegelijk volop ruimte voor kinderen en huisdieren. In de zomer barbecue je of bak je zelf pizza’s buiten in de avondzon, geniet je van de tuin en kijk je naar rondzwemmende zwanen, futen en ijsvogels. Vanaf de eigen aanlegplaats verken je per boot de verborgen strandjes van het Wijde Blik, of vaar je naar Vreeland, Loosdrecht of Nederhorst den Berg voor een lunch. In de winter wordt er regelmatig geschaatst in de omgeving, worden vosjes in de sneeuw gespot en kijk je vanachter de grote ramen, met brandende houtkachel, uit over een spiegelglad landschap.

Ligging
Op de grens van Loosdrecht en Kortenhoef. Albert Heijn en diverse horecagelegenheden op ca. 5 minuten fietsen. Amsterdam bereik je in ca. 15 minuten met de auto (of ca. 2 uur per boot), Hilversum in 5 minuten, Utrecht in ca. 20 minuten. Schiphol ligt op ca. 25 autominuten.

Indeling

Begane grond

Via een ruime schuifpui betreed je de lichte, open leefruimte. Aan de rechterzijde een kastenwand/garderobe met bergruimte. De woonkamer met zit- en eethoek loopt naadloos over in een moderne keuken met veel inbouwkasten en hoogwaardige apparatuur, waaronder een Quooker, Miele combi-stoomoven en koel-vriescombinatie.

De woonkamer is voorzien van een Focus design houtkachel en biedt door het royale gebruik van glas een uniek, direct uitzicht over de plas. Natuurlijke materialen, een warm houten plafond, een ingetogen palet en doorlopende vloer, versterken het gevoel van rust en ruimte.

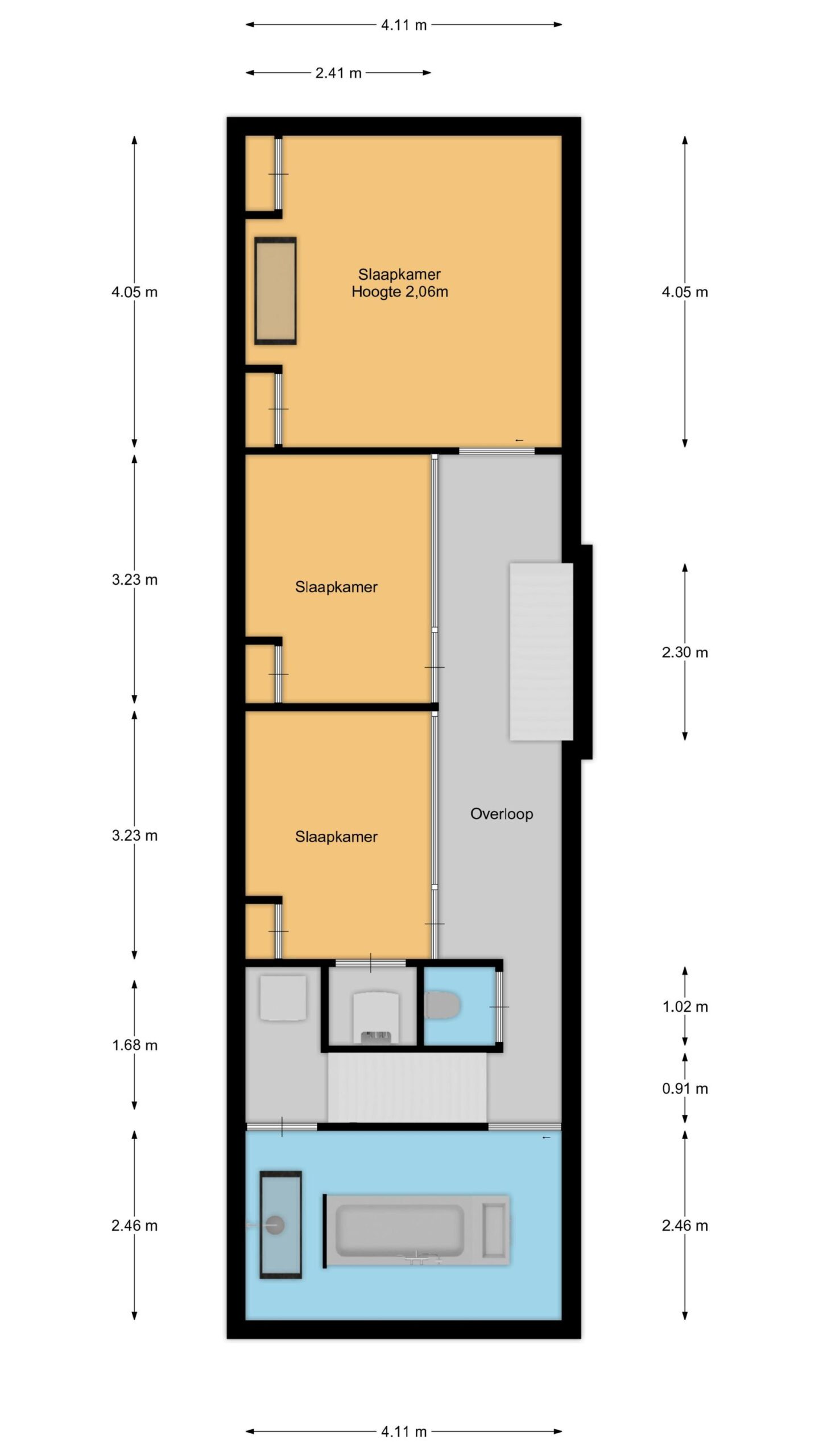
Benedenverdieping

Via de overloop bereik je drie slaapkamers, waaronder een master bedroom met praktische inbouwkasten en een bureau. De twee overige slaapkamers zijn uitstekend geschikt als kinder-, logeer- of werkkamer en beschikken eveneens over vaste kasten, een hoog afwerkingsniveau en ruim voldoende opbergruimte.

De badkamer is compleet uitgevoerd met ligbad, inloopdouche en wastafelmeubel. Op deze verdieping bevinden zich tevens een washok, technische ruimte en een separaat toilet.

Buitenruimte en perceel
Op het perceel van ca. 3.000 m² is een fraaie, onder architectuur aangelegde tuin gerealiseerd met volwassen beplanting, siergrassen en een eigen bosje, een groene buffer die zorgt voor volledige privacy. Een houten steiger langs het water nodigt uit tot zwemmen of een duik vanaf de kant, en voor de kinderen is er een trampoline en een eigen vissteiger.

Verder op het perceel:
• Ruim (eventueel overdekt) terras grenzend aan het water;
• Buitendouche in wandbekleding van verticale houten latten;
• Bijgebouw met toilet en bergruimte;
• Voorbereiding voor een jacuzzi;
• Eigen aanlegplaats voor een boot, vaar direct de Loosdrechtse Plassen op;
• Twee eigen parkeerplaatsen op het afgesloten parkeerterrein van de VvE.

Bijzonderheden
• Bouwjaar 2008, in 2022 volledig gerenoveerd en geïsoleerd;
• Energielabel A++;
• Gasloos, warmtepomp en 14 zonnepanelen;
• 5 airco’s verdeeld over de woning;
• Domoticasysteem;
• Permanente woonvergunning;
• Perceel van ca. 3.000 m² met veel mogelijkheden;
• Gunstig gelegen t.o.v. Amsterdam, Hilversum, Utrecht en Schiphol;
• Alle faciliteiten op fietsafstand;
• Parkeren op eigen parkeerterrein (VvE);
• Architectuur watervilla: Kolthuis;
• Interieur en tuin: Studio Asker;
• Wordt aangeboden inclusief meubilair;
• Gepubliceerd in Scandinavian Living en in het boek Japandi Living (Laila Rietbergen & Joost van der Krieken);
• Optioneel: sloep ter overname.

Kortom: een zeldzame kans om te wonen in een turn-key watervilla met de rust en privacy van een vakantiehuis, op korte afstand van de stad.

Toon meer

Foto's

Plattegronden

De buurt

Wij vertellen je graag wat over de omgeving.

Leeftijd in gemeente
0 - 15 jaar
15 - 25 jaar
25-45 jaar
45 - 65 jaar
65+ jaar
  • 0 - 15 jaar
  • 15 - 25 jaar
  • 25 - 45 jaar
  • 45 - 65 jaar
  • 65+ jaar
Gezinnen met kinderen
Met kinderen
Zonder kinderen
Alleenstaand
  • Met kinderen
  • Zonder kinderen
  • Alleenstaand
Leeftijd buurtbewoners
0 - 15 jaar
15 - 25 jaar
25-45 jaar
45 - 65 jaar
65+ jaar
  • 0 - 15 jaar
  • 15 - 25 jaar
  • 25 - 45 jaar
  • 45 - 65 jaar
  • 65+ jaar

NVM Makelaar

Stijn Lommers

Direct contact Direct contact
Voorma en Walch Makelaars in het Gooi

Contact opnemen

Voel je vrij en
neem contact op.

Wil je mooi en groen wonen in het Gooi? Of zoek je een lokale makelaar met wie je rustig jouw woonsituatie kunt bespreken? Wij nodigen je graag uit voor een cappuccino op één van onze kantoren!

Contact
';