Veendijk 1 a 14 Loosdrecht makelaarskantoor Blaricum foto 1

Beschikbaar

Veendijk 1 A 14

  • Loosdrecht
  • |
  • 88 m2
  • |

€725.000 k.k.

Op werkelijk de allermooiste locatie, direct aan de Loosdrechtse Plassen gelegen appartement voorzien van open haard (gas) bovendien met royaal terras alsmede twee privé parkeerplaatsen in de ondergrondse parkeergarage. Wonen, recreëren en…

"Geluk zit 'm in vele dingen en prettig wonen hoort daar zeker bij"

Voorma en Walch Makelaars in het GooiHet team

Kenmerken

    Overdracht

  • Aanvaarding In overleg
  • Bouw

  • Soort bouw Bestaande bouw
  • Bouwjaar 2000

    Details

  • Voorzieningen Mechanische ventilatie, lift, airconditioning, sauna, natuurlijke ventilatie
  • Ligging Aan water, vrij uitzicht, open ligging, aan vaarwater
  • Daktype Plat dak
  • Oppervlakten en inhoud

  • Woonoppervlakte 88 m2
  • Inhoud 255 m3
  • Indeling

  • kamers 3
  • slaapkamers 2
  • badkamer 1
  • Badkamervoorzieningen Dubbele wastafel, inloopdouche
  • Isolatie en verwarming

  • Isolatie Dubbel glas, volledig geisoleerd
  • Soort Verwarming Cv ketel, gashaard
  • Ketel bouwjaar 2009
  • Ketel gas/olie Gas
  • Ketel eigendom Eigendom
  • Energielabel

  • Energielabel A
  • Buitenruimte

    Garage

  • Garagesoorten Parkeerkelder
  • Parkeergelegenheid

  • Faciliteit Parkeergarage
Meer kenmerken

Omschrijving

Op werkelijk de allermooiste locatie, direct aan de Loosdrechtse Plassen gelegen appartement voorzien van open haard (gas) bovendien met royaal terras alsmede twee privé parkeerplaatsen in de ondergrondse parkeergarage. Wonen, recreëren en ontspannen komen hier moeiteloos bij elkaar.

Gelegen in het exclusieve complex ‘De Driesprong’, dat permanent bewoond mag worden, geniet u hier van een moderne fitnessruimte met sauna én de rust van het water, terwijl u binnen 30 minuten in Amsterdam, Utrecht of op Schiphol bent.

U betreedt het complex via een beveiligde entree met stijlvolle ontvangsthal, voorzien van comfortabele zithoek en een sfeervolle gashaard. Vanuit hier bereikt u via de lift of het trappenhuis zowel het appartement als de parkeergarage, bergingen en fitnessruimte/sauna.
Het appartement bevindt zich op de eerste etage (pal zuid) en is ontworpen met als uitgangspunt het prachtige uitzicht over de Loosdrechtse plassen.

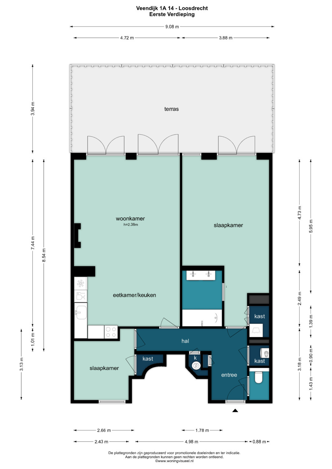
De indeling van dit appartement is als volgt;

Entree, hal, toilet, diverse vaste kasten, 2 in grootte variërende slaapkamers waarvan master bedroom met openslaande deuren naar het terras. Gemoderniseerde badkamer voorzien van een dubbel wastafelmeubel en inloopdouche. Royale living met eetgedeelte en gashaard voorts 2 openslaande deuren naar het terras…

Op werkelijk de allermooiste locatie, direct aan de Loosdrechtse Plassen gelegen appartement voorzien van open haard (gas) bovendien met royaal terras alsmede twee privé parkeerplaatsen in de ondergrondse parkeergarage. Wonen, recreëren en ontspannen komen hier moeiteloos bij elkaar.

Gelegen in het exclusieve complex ‘De Driesprong’, dat permanent bewoond mag worden, geniet u hier van een moderne fitnessruimte met sauna én de rust van het water, terwijl u binnen 30 minuten in Amsterdam, Utrecht of op Schiphol bent.

U betreedt het complex via een beveiligde entree met stijlvolle ontvangsthal, voorzien van comfortabele zithoek en een sfeervolle gashaard. Vanuit hier bereikt u via de lift of het trappenhuis zowel het appartement als de parkeergarage, bergingen en fitnessruimte/sauna.
Het appartement bevindt zich op de eerste etage (pal zuid) en is ontworpen met als uitgangspunt het prachtige uitzicht over de Loosdrechtse plassen.

De indeling van dit appartement is als volgt;

Entree, hal, toilet, diverse vaste kasten, 2 in grootte variërende slaapkamers waarvan master bedroom met openslaande deuren naar het terras. Gemoderniseerde badkamer voorzien van een dubbel wastafelmeubel en inloopdouche. Royale living met eetgedeelte en gashaard voorts 2 openslaande deuren naar het terras alsmede keuken met diverse inbouwapparatuur.

Zowel de living als de master bedroom bieden toegang tot het heerlijke, zonnige ruime terras.

Bijzonderheden:
• Vanuit bijna de gehele woning uitzicht over het water
• Twee parkeerplaatsen in afgesloten parkeergarage
• Privé berging in de onderbouw
• Zonnig terras met waanzinnig uitzicht over het water
• Servicekosten bedragen thans € 645,25 per maand
• Permanente bewoning toegestaan
• Slaapkamer voorzien van airconditioning
• Snelle oplevering mogelijk

Bent u op zoek naar een comfortabele en bijzondere woning op een toplocatie aan het water? Maak dan een afspraak met Jacques E. Walch NVM Register Makelaar of Tessa Soede NVM Makelaar verbonden aan Voorma en Walch Makelaars te Blaricum, telefoonnummer: 035-5315300 of Carolien Mol NVM Makelaar verbonden aan Voorma en Walch Makelaars te Hilversum, telefoonnummer: 035-5399088.

Toon meer

Foto's

Veendijk 1 a 14 Loosdrecht makelaarskantoor Blaricum foto 1
Veendijk 1 a 14 Loosdrecht makelaarskantoor Blaricum foto 2
Veendijk 1 a 14 Loosdrecht makelaarskantoor Blaricum foto 3
Veendijk 1 a 14 Loosdrecht makelaarskantoor Blaricum foto 4
Veendijk 1 a 14 Loosdrecht makelaarskantoor Blaricum foto 5
Veendijk 1 a 14 Loosdrecht makelaarskantoor Blaricum foto 1
Veendijk 1 a 14 Loosdrecht makelaarskantoor Blaricum foto 2
Veendijk 1 a 14 Loosdrecht makelaarskantoor Blaricum foto 3
Veendijk 1 a 14 Loosdrecht makelaarskantoor Blaricum foto 4
Veendijk 1 a 14 Loosdrecht makelaarskantoor Blaricum foto 5

Plattegronden

De buurt

Wij vertellen je graag wat over de omgeving.

Leeftijd in gemeente
0 - 15 jaar
15 - 25 jaar
25-45 jaar
45 - 65 jaar
65+ jaar
  • 0 - 15 jaar
  • 15 - 25 jaar
  • 25 - 45 jaar
  • 45 - 65 jaar
  • 65+ jaar
Gezinnen met kinderen
Met kinderen
Zonder kinderen
Alleenstaand
  • Met kinderen
  • Zonder kinderen
  • Alleenstaand
Leeftijd buurtbewoners
0 - 15 jaar
15 - 25 jaar
25-45 jaar
45 - 65 jaar
65+ jaar
  • 0 - 15 jaar
  • 15 - 25 jaar
  • 25 - 45 jaar
  • 45 - 65 jaar
  • 65+ jaar

NVM Register Makelaar

Jacques Walch

Direct contact Direct contact
Voorma en Walch Makelaars in het Gooi

Contact opnemen

Voel je vrij en
neem contact op.

Wil je mooi en groen wonen in het Gooi? Of zoek je een lokale makelaar met wie je rustig jouw woonsituatie kunt bespreken? Wij nodigen je graag uit voor een cappuccino op één van onze kantoren!

Contact
';